Découvrez une opportunité exceptionnelle sur la Côte Radieuse avec un tout nouveau ensemble immobilier en bord de mer à Saint-Cyprien ! Cette résidence de prestige, composée de seulement 12 appartements, a été conçue pour offrir un cadre de vie inégalé, alliant confort moderne et vues imprenables.
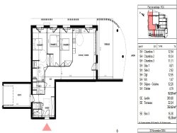
Nous vous présentons un appartement T4 spacieux de plus de 93 m² en rez-de-chaussée, agrémenté d'un jardin privatif de 309 m².
Profitez d'un aménagement optimisé avec de vastes espaces de vie lumineux, une cuisine, trois chambres confortables dont une suite parentale, une salle d'eau élégante avec douche à l'italienne et des toilettes indépendantes pour un confort ultime. De plus, un garage privatif et une place de parking sont inclus.
Conforme aux normes environnementales RE2020, cette résidence garantit une isolation thermique et acoustique optimale, vous assurant un confort de vie tout au long de l'année. La livraison est prévue pour le 2e trimestre 2026.
Ne laissez pas passer cette occasion unique d'acquérir un bien d'exception en bord de mer. D'autres lots T2 et T3 sont également disponibles.
Contactez-nous dès aujourd'hui pour plus d'informations et commencez à imaginer votre nouvelle vie au bord de l'eau !
Les informations sur les risques auxquels ce bien est exposé sont disponibles sur le site Géorisques : www.georisques.gouv.fr »
93 m²
8 172 €
32 m²
4
3
2
2
2025
Séparée
Sud
Oui
Oui
Contact SELECTION MED LE SOLER
Contacter gratuitement à l'aide du formulaire ci-dessous.