À VENDRE ? LE PLESSIS-ROBINSON ? APPARTEMENT 2 PIÈCES ? BALCON ? PROCHE TRANSPORTS & COMMERCES
Découvrez ce magnifique appartement 2 pièces de 42,3 m², situé au 2e étage d'une résidence néo-classique récente et lumineuse, orienté sud-est pour un ensoleillement optimal toute la journée. Profitez d'un balcon de 3,6 m² accessible depuis le séjour et la chambre, idéal pour vos moments de détente.
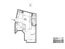
Agencement optimisé :
Entrée
Séjour spacieux avec cuisine ouverte et accès au balcon
Chambre calme, exposée nord-est, avec accès au balcon
Salle d'eau incluant les toilettes
Atouts majeurs :
Norme RE 2020 : Isolation renforcée, efficacité énergétique et charges réduites pour un confort optimal
Garanties constructeur : Sérénité assurée pour votre investissement
Emplacement idéal : À seulement 3 min de marche de la halle du marché, 5 min du jardin de Robinson, et près d'un centre sportif et d'une école maternelle.
Transports à proximité :
Tramway :
Tramway T10 : station « Noveos » à 7 min de marche qui permet de rejoindre la gare RER B « La Croix de Berny » en 16 min.
Tramway T6 : station « Mail de la Plaine » à 20 min de marche, qui permet de rejoindre « Châtillon-Montrouge » (Métro 13) en 17 min.
Autobus :
Bus 415 (Le Plessis Robinson ? Verrières le Buisson)
Bus 179 (Sceaux-Pont de Sèvres)
Bus 195 (Malabry ? Châtillon ? Montrouge)
Voiture :
A moins de 2 km de l'autoroute A86
À environ 3 km de la N118.
À 8 min en voiture du centre commercial Vélizy 2.
Proximité des commerces et services : halle du marché, supermarchés, boutiques et services du quotidien à deux pas, proche du centre-ville et des parcs.
Un cadre de vie agréable, une résidence moderne et des transports pratiques : tout est réuni pour un quotidien facile et serein.
Contactez-nous dès maintenant pour une visite !
Les informations sur les risques auxquels ce bien est exposé sont disponibles sur le site Georisque : georisques. gouv. fr
Wesley Capelo Baubil - EI - est Agent Commercial mandataire en immobilier, immatriculé au Registre Spécial des Agents Commerciaux du Tribunal de Commerce de Nanterre sous le n°480092089.
Siège social du mandant : effiCity, 48 avenue de Villiers - 75017 PARIS - Société par Actions Simplifiée, société au capital de 132 373,05 euros, immatriculée au RCS Paris 497 617 746 et titulaire de la Carte professionnelle CPI 7501 2015 000 002 025 - CCI Paris IDF - Caisse de Garantie : GALIAN Assurances 89 rue de la Boétie 75008 Paris
42 m²
6 917 €
19 m²
2
1
1
1
2 sur 5
2025
Oui
Oui
Contact M. Wesley Capelo Baubil
Contacter gratuitement à l'aide du formulaire ci-dessous.