À VENDRE ? LE PLESSIS-ROBINSON ? APPARTEMENT 2 PIÈCES ? BALCON ? PROCHE TRANSPORTS & COMMERCES
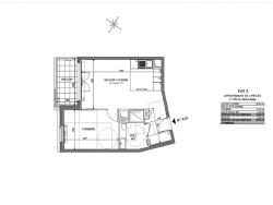
Découvrez ce magnifique appartement 2 pièces de 46,55 m², situé au 3e étage d'une résidence néo-classique récente, orienté nord-ouest. Profitez d'un balcon de 5,4 m² accessible depuis le séjour, idéal pour vos moments de détente.
Agencement optimisé :
Entrée
Séjour spacieux avec cuisine ouverte et accès au balcon côté nord-ouest.
Chambre calme, exposée nord-ouest.
Salle d'eau incluant les toilettes.
Atouts majeurs :
Norme RE 2020 : Isolation renforcée, efficacité énergétique et charges réduites pour un confort optimal.
Garanties constructeur : Sérénité assurée pour votre investissement.
Emplacement idéal : À seulement 3 min de marche de la halle du marché, 5 min du jardin de Robinson, et près d'un centre sportif et d'une école maternelle.
Transports à proximité :
Tramways :
Tramway T10 : station « Noveos » à 7 min de marche qui permet de joindre la gare « La Croix de Berny » du RER B en 16 min.
Tramway T6 : station « Mail de la Plaine » à 20 min de marche, qui permet de joindre la station « Châtillon-Montrouge » du métro 13 en 17 min.
Autobus :
Bus 415 (Le Plessis Robinson ? Verrières le Buisson)
Bus 179 (Sceaux-Pont de Sèvres)
Bus 195 (Malabry ? Châtillon ? Montrouge)
Voiture :
A moins de 2 km de l'autoroute A86
À environ 3 km de la N118.
À 8 min en voiture du centre commercial Vélizy 2.
Proximité des commerces et services : halle du marché, supermarchés, boutiques et services du quotidien à deux pas, proche du centre-ville et des parcs.
Un cadre de vie agréable, une résidence moderne et des transports pratiques : tout est réuni pour un quotidien facile et serein.
Contactez-nous dès maintenant pour une visite !
Les informations sur les risques auxquels ce bien est exposé sont disponibles sur le site Georisque : georisques. gouv. fr
Wesley Capelo Baubil - EI - est Agent Commercial mandataire en immobilier, immatriculé au Registre Spécial des Agents Commerciaux du Tribunal de Commerce de Nanterre sous le n°480092089.
Siège social du mandant : effiCity, 48 avenue de Villiers - 75017 PARIS - Société par Actions Simplifiée, société au capital de 132 373,05 euros, immatriculée au RCS Paris 497 617 746 et titulaire de la Carte professionnelle CPI 7501 2015 000 002 025 - CCI Paris IDF - Caisse de Garantie : GALIAN Assurances 89 rue de la Boétie 75008 Paris
46 m²
6 620 €
26 m²
2
1
1
1
3 sur 5
2025
Ouest
Oui
Oui
Contact M. Wesley Capelo Baubil
Contacter gratuitement à l'aide du formulaire ci-dessous.