À vendre : Charmant 2 pièces lumineux à Draveil (91)
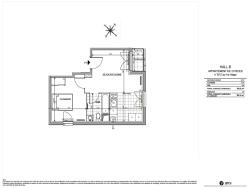
Découvrez ce superbe appartement de 37,6 m², idéalement situé au premier étage d'une résidence calme. Exposé sud-ouest, il bénéficie d'une luminosité exceptionnelle.
Ce bien comprend un séjour avec cuisine ouverte donnant sur une terrasse agréable, une chambre indépendante, ainsi qu'une salle de bain avec toilettes. Un parking vient compléter ce bien.
À proximité des commodités, cet appartement est parfait pour un premier achat ou un investissement. Ne laissez pas passer cette opportunité !
Localisation idéale : À proximité immédiate des transports (métro, gare), vous rejoindrez facilement Paris et ses environs. Vous trouverez également à deux pas tous les commerces, supermarchés et services indispensables au quotidien. Cet appartement est une opportunité rare : espace, confort et emplacement stratégique réunis dans un même bien ! Efficacité énergétique et faibles charges et son isolation renforcée . La résidence répond a la nouvelle norme RE2020 qui vous garantira un confort maximal pour une consommation réduite .Cette acquisition vous permettra de bénéficier des garanties du constructeur vous assurant une sérénité sur votre investissement . possibilité de une place de parking pour un montant de 10000 EUROS
Pour plus d'informations ou pour organiser une visite, n'hésitez pas à nous contacter !
Les informations sur les risques auxquels ce bien est exposé sont disponibles sur le site Georisque : georisques. gouv. fr
Wesley Capelo Baubil - EI - est Agent Commercial mandataire en immobilier, immatriculé au Registre Spécial des Agents Commerciaux du Tribunal de Commerce de Nanterre sous le n°480092089.
Siège social du mandant : effiCity, 48 avenue de Villiers - 75017 PARIS - Société par Actions Simplifiée, société au capital de 132 373,05 euros, immatriculée au RCS Paris 497 617 746 et titulaire de la Carte professionnelle CPI 7501 2015 000 002 025 - CCI Paris IDF - Caisse de Garantie : GALIAN Assurances 89 rue de la Boétie 75008 Paris
37 m²
5 541 €
2
1
1
1
1
Ouest
Oui
Oui
Contact M. Wesley Capelo Baubil
Contacter gratuitement à l'aide du formulaire ci-dessous.