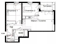
Situé dans le quartier de Saint-Roch à Nice, au sein de la résidence L'Angelo, cet appartement de 63m² offre un cadre de vie agréable et fonctionnel.
Il se compose de trois pièces comprenant deux chambres, une salle de bain, ainsi qu'un spacieux séjour avec cuisine ouverte de 27 m². Une terrasse vient compléter le bien, idéale pour profiter des beaux jours.
Parfait pour une petite famille ou un couple, cet appartement allie confort et praticité.
La résidence est équipée d'un ascenseur, facilitant l'accès, notamment pour les personnes à mobilité réduite.
Les informations sur les risques auxquels ce bien est exposé sont disponibles sur le site Géorisques : www. georisques. gouv. fr
Bien présenté par Agences de France par délégation.
Agences de France ? SIREN : 899413603 ? Titulaire de la carte T : 29012021000000009 non habilité à percevoir des fonds
58 m²
6 500 €
3
2
1
1
3
Sud
Est
Oui
Consommations énergétiques
Logement économe
15
Logement énergivore (kWhEP/m2/an)
Contact Jesse JANIN
Contacter gratuitement à l'aide du formulaire ci-dessous.