APPARTEMENT NEUF CENTRE VILLE DE PLOUGASTEL DAOULAS
Plougastel-Daoulas 29470
0
Honoraires à la charge du vendeur.
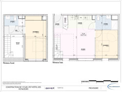
Imaginez-vous vivre dans un havre de paix et de modernité, où chaque détail a été soigneusement pensé pour votre confort et votre bien-être. Ce magnifique duplex de 66,27 m², situé dans un quartier paisible et bien desservi, est l'incarnation même de l'élégance et de la fonctionnalité. Dès votre entrée, vous serez séduit par l'espace de vie ouvert et lumineux, parfait pour accueillir vos invités ou simplement profiter d'un moment de détente en famille. La cuisine moderne et équipée, ouverte sur le salon, vous permettra de préparer vos repas tout en restant connecté avec vos proches. L'escalier en colimaçon, élégant et pratique, vous mènera à l'étage supérieur, où vous découvrirez deux chambres spacieuses et une salle de bain moderne. Chaque pièce a été conçue pour offrir un maximum de confort et de fonctionnalité, avec des finitions de haute qualité et des matériaux durables. Ce duplex est bien plus qu'un simple logement; c'est un véritable nid douillet où vous pourrez vous épanouir et créer des souvenirs inoubliables. Imaginez-vous vous réveiller chaque matin dans un environnement paisible, avec la lumière du jour inondant vos pièces, et profiter de la proximité des commodités essentielles. À seulement 5 minutes à pied, vous trouverez un parc et jardin idyllique, parfait pour des promenades relaxantes ou des pique-niques en famille. De plus, plusieurs restaurants et commerces de proximité sont accessibles en quelques minutes, vous offrant une vie pratique et agréable. Ce duplex est également éligible à la fibre, garantissant une connexion internet rapide et fiable pour tous vos besoins professionnels et personnels. Ne manquez pas l'opportunité de faire de ce duplex votre nouveau foyer. Contactez-nous dès aujourd'hui pour organiser une visite et découvrir par vous-même tout le charme et le confort de cette propriété exceptionnelle.
Honoraires à la charge du vendeur. Dans une copropriété de 20 lots. Aucune procédure n'est en cours. Non soumis au DPE. Les informations sur les risques auxquels ce bien est exposé sont disponibles sur le site Géorisques : georisques.gouv.fr.
Duplex
66.27 m²
4 051 €
3
Oui (20 lots)
Contact Michel BERGAMASCO
Contacter gratuitement à l'aide du formulaire ci-dessous.