Honoraires à la charge de l'acquéreur (Prix hors honoraires : 0 euros).
Les charges de location sont prévisionnelles mensuelles avec régularisation annuelle.
La part des honoraires pour la réalisation de létat des lieux de ce bien est de 180 euros.
Appartement T3 Neuf avec Terrasse - Un Cadre de Vie Idéal
Découvrez ce magnifique appartement T3 neuf, situé au 2ème étage d'une résidence récente construite en 2025.
Imaginez-vous dans un espace lumineux et spacieux, où chaque détail a été pensé pour votre bien-être. Les grandes ouvertures en PVC à double vitrage laissent entrer la lumière naturelle, créant une atmosphère chaleureuse et accueillante. La terrasse, parfaite pour les moments de détente, vous offre un espace extérieur privatif pour profiter des beaux jours.
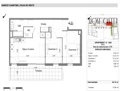
Cet appartement comprend 2 chambres confortables, une salle de bains moderne, et un WC indépendant, offrant ainsi tout le confort nécessaire pour une vie quotidienne agréable.
Le stationnement intérieur vous garantit une place de parking sécurisée.
Ne manquez pas cette opportunité de vivre dans un appartement neuf, alliant confort, modernité et emplacement privilégié.
Contactez-nous dès maintenant pour une visite et laissez-vous séduire par ce cadre de vie exceptionnel.
Appartement B301 Disponible le 16 décembre 2025
Honoraires de 661 TTC à la charge du locataire comprenant 180 TTC pour l'état des lieux. Loyer de base 770 /mois. Provision sur charges 70 /mois, régularisation annuelle. Dépôt de garantie 770 . DPE en cours. Les informations sur les risques auxquels ce bien est exposé sont disponibles sur le site Géorisques : georisques.gouv.fr.
60.1 m²
3
2
1
1 (séparé)
3
661 %
70.00 € / mois
2025
Oui
1
1
Oui
Contact Chartres Agglomération immmobilier
Contacter gratuitement à l'aide du formulaire ci-dessous.