Appartement neuf T2 dans une résidence sécurisée et de stand
Céret 66400
0
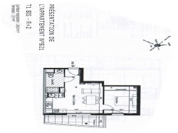
L'agence Foresthill de Céret vous propose ce superbe appartement T2, situé au second étage d'une résidence neuve offrant tout le confort moderne. D'une surface de 39.70 m2, il se compose d'une pièce à vivre lumineuse donnant sur une terrasse, une chambres de 11,70m2 avec placards, d'un cellier pratique, ainsi que d'une salle d'eau fonctionnelle. Profitez également d'une place de parking, idéal pour stationner des véhicules en toute sécurité. Ne manquez pas cette opportunité ! Contactez-nous pour plus d'informations ou une visite. Contactez-nous dès maintenant pour organiser une visite et laissez-vous séduire par ce bien d'exception. Agence Forest Hill - Jay HEWITT - Conseillère Immobilier - 06 88 28 00 35 jay.h@agence-foresthill.fr RSAC 512 933 482 Cette annonce vous est proposée par Hewitt Jay - - NoRSAC: 512933482, Enregistré au Greffe du tribunal de commerce de Bordeaux
39.8 m²
4 271 €
23 m²
2
1
1
1
2 sur 4
Sud
Est
1
1
Contact Hewitt
Contacter gratuitement à l'aide du formulaire ci-dessous.