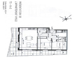
L'agence Foresthill de Céret vous propose ce superbe appartement T3, situé au premier étage d'une résidence neuve offrant tout le confort moderne. D'une surface de 65,5 m2, il se compose d'une pièce à vivre lumineuse, de deux chambres avec placards, toutes deux ouvrant sur une magnifique terrasse de 29,80 m2, d'un cellier pratique, ainsi que d'une salle d'eau fonctionnelle. Profitez également d'un parking boxé, idéal pour stationner votre véhicule en toute sécurité. Ne manquez pas cette opportunité ! Contactez-nous pour plus d'informations ou une visite. Contactez-nous dès maintenant pour organiser une visite et laissez-vous séduire par ce bien d'exception. Agence Forest Hill - Jay HEWITT - Conseillère Immobilier - 06 88 28 00 35 jay.h@agence-foresthill.fr RSAC 512 933 482 Cette annonce vous est proposée par Hewitt Jay - - NoRSAC: 512933482, Enregistré au Greffe du tribunal de commerce de Bordeaux
65.5 m²
3 939 €
31 m²
3
2
1
1
2 sur 4
Sud
Est
2
1
Contact Hewitt
Contacter gratuitement à l'aide du formulaire ci-dessous.