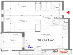
SAINT PRIEST Rue Anatole France, proche de le ligne de TRAM T2, à seulement 900m du centre ville (commerces, services divers et variés), et à seulement 20 min du centre de Lyon !PARLEZ-MOI D'IMMO vous propose un programme Neuf T3 de 61.01m² avec deux balcons (8.39m² et 3.82m²) et stationnement souterrain, situé au 3ème étage d'une résidence neuve, moderne et sécurisée. ***Livraison 3ème trimestre 2025! Frais de notaire réduits à 2.5%!***Vous bénéficiez d'une entrée avec placard, d'un séjour avec cuisine ouverte de plus de 22m², de deux grandes chambres équipées d'un placard intégré, d'une salle de bain et d'un WC indépendant. Enfin, le grand balcon exposé O/S et le petit balcon exposé Sud sont accessibles par le séjour.Ce logement présente des prestations de qualités pour assurer l'esthétisme, le confort et la sécurité : Carrelage pour le séjour/cuisine et salle de bain, revêtement parquet stratifié pour les chambres. Fenêtres alu et bois, volets roulants manuels, porte palière serrure de sûreté 3 points. Production de chauffage et d'eau chaude par chaudière gaz individuelle. Programmation et régulation du chauffage avec thermostat d'ambiance. Vidéophone.Mentions légales: Les informations sur les risques auxquels les biens sont exposés sont disponibles sur le site Géorisques: www.georisques.gouv.fr, les honoraires sont à la charge du vendeur, notre barème est consultable sur notre site. Le bien est soumis au régime de copropriété, nombre de lots: 40. Aucune procédure en cours menée sur le fondement des articles 29-1 A et 29-1 de la loi n°65-557 du 10 juillet 1965 et de l'article L.615-6 du CCH. Pour toutes informations complémentaires ou rendez-vous, n'hésitez pas à contacter Morgane BLE votre conseillère indépendante spécialisée sur le secteur au O6 99 73 77 81, Statut Agent Commercial RSAC de Villefranche/Tarare
Honoraires à la charge du vendeur. Dans une copropriété de 40 lots. Aucune procédure n'est en cours. DPE en cours. Les informations sur les risques auxquels ce bien est exposé sont disponibles sur le site Géorisques : georisques.gouv.fr.