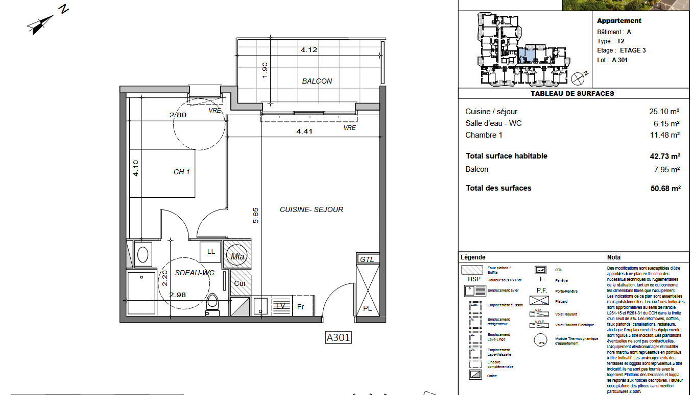
Située le long de la côte des Pyrénées-Orientales, Le Barcarès offre une fusion parfaite entre les charmes ensoleillés d'une station balnéaire et les avantages pratiques d'une ville bien équipée. Étirée sur 8 kilomètres de plage, dotée d'un lac marin et nichée au coeur de 50 hectares de pinède, cette enclave propose un cadre de vie idyllique, mariant harmonieusement la nature et la Méditerranée. Idéalement située à l'entrée sud de la ville, la résidence profite d'un emplacement exceptionnel, nichée au coeur d'une nature préservée tout en étant à quelques pas seulement du centre-ville. En moins de 10 minutes de marche, vous avez accès à une panoplie de commerces et de services essentiels pour votre quotidien. La pinède existante est préservée, et de nouvelles essences locales seront plantées. Le parc paysager devient ainsi un havre de paix idéal pour se ressourcer. En ce qui concerne la mobilité, le centre-ville de Perpignan, sa gare TGV et son aéroport ne sont qu'à 20 minutes en voiture, tandis que les stations de ski des Pyrénées sont accessibles en seulement 1h30. Découvrez y un Appartement neuf T3 de standing, de 62m2 avec une terrasse de 8m2. Il est composé d'un séjour/cuisine, de deux chambres aux normes PMR avec accès à la terrasse, d'une salle de bain avec WC, deux parkings extérieurs inclus. Label BBC et norme RE 2020 vous garantissent de faibles dépenses énergétiques et thermiques. Frais de notaire réduits à moins de 3%, Réalisez votre projet LMNP. Eligible Pinel B1 Informations et disponibilités au 06 98 80 86 74.
62 m²
3 961 €
8 m²
3
2
1
1
1 sur 2
01/01/2025
2025
Est
1 (8 m²)
Oui
2
Oui
1
Oui
Oui (26 lots)
Consommations énergétiques
Logement économe
40
Logement énergivore (kWhEP/m2/an)
Émissions de gaz à effet de serre
Faible émission de GES
5
Forte émission de GES(kgeqCO2/m2/an)
Contact Prodeom Immobilier
Contacter gratuitement à l'aide du formulaire ci-dessous.