Goodshowcase
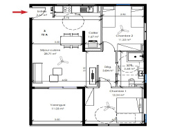
Vente appartement 3 pièces

Vente appartement 3 pièces
292 000 €

Contact KM Immobilier agence Montabo

Contacter gratuitement à l'aide du formulaire ci-dessous.


Afficher le téléphone


Annonces similaires

Vente appartement

Remire-Montjoly 97354 - 0

242 000 €

...La résidence sécurisée (portail électrique)garantit tranquillité et confort, avec la proximité...

Voir l'annonce

Vente appartement

Remire-Montjoly 97354 - 0

285 000 €

...Nichée dans un écrin de verdure et certifiée NF Habitat, elle offre à ses résidents des...

Voir l'annonce

Vente appartement

Remire-Montjoly 97354 - 0

240 000 €

...De niveau R+3, parée d'une toiture cintrée et de façades alternant tons clairs, couleur latérite...

Voir l'annonce