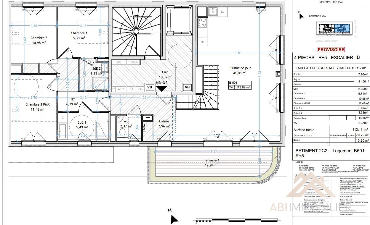
La quiétude au coeur du dynamisme montpelliérain Idéalement située à Montpellier, cette nouvelle résidence bénéficie d'un emplacement privilégié en lisière du vaste parc Montcalm, avec un accès direct aux grands axes et à l'autoroute. À seulement quelques minutes du centre historique et des plages, elle offre un cadre de vie unique, entre nature et animation urbaine. Commerces de proximité, équipements culturels et sportifs, écoles et crèches viennent parfaire ce quotidien pratique et agréable. La vie de quartier, rythmée par les marchés, les restaurants et les lieux de loisirs, crée un environnement vivant et harmonieux, idéal pour celles et ceux en quête d'équilibre entre ville et sérénité. Des prestations haut de gamme Les appartements ont été pensés pour offrir un cadre de vie raffiné, alliant confort, esthétisme et performance. Les matériaux choisis sont nobles, les finitions particulièrement soignées, et les équipements à la pointe. La lumière naturelle inonde les intérieurs grâce aux larges ouvertures, tandis que de beaux espaces extérieurs privatifs prolongent l'habitat vers l'extérieur. Cuisine ouverte, salle de bains contemporaine, agencement optimisé... Tout est réuni pour faire de chaque logement un véritable cocon, au sein d'un environnement urbain dynamique et verdoyant. Découvrez y un appartement T5 de 99 m2 avec une terrasse de 95 m2. Il est composé d'une pièce de vie, de trois chambres et d'une salle d'eau avec WC. Parking inclus. Les avantages d'acheter un logement neuf avec PRODEOM :
oFrais de notaire réduits entre 2 et 3% (contre 8% dans l'ancien). oPerformance énergétique conforme aux normes RE2020. oExonération partielle de la taxe foncière les premières années. oPossibilité de Prêt à Taux 0% d'intérêts bancaires jusqu'à la MOITIÉ du prix du bien (50%)
oMoins de charges et pas de travaux pendant au moins 15 ans. oGarantie de construction pendant 10 ans.
99 m²
5 908 €
95 m²
5
4
1
1
5 sur 5
30/12/2027
2027
Est
1 (95 m²)
Oui
1
Oui
1
Oui
Oui (34 lots)
Consommations énergétiques
Logement économe
40
Logement énergivore (kWhEP/m2/an)
Émissions de gaz à effet de serre
Faible émission de GES
5
Forte émission de GES(kgeqCO2/m2/an)
Contact Prodeom Immobilier
Contacter gratuitement à l'aide du formulaire ci-dessous.