Honoraires à la charge de l'acquéreur (Prix hors honoraires : 174000 euros).
Le Cabinet ARBOR IMMOBILIER vous présente l'appartement « Capucine », situé à Villers-sur-Mer, dans un environnement recherché entre plage, coeur de ville et espaces naturels préservés. Pourquoi « Capucine » ??Chez Arbor Immobilier, chaque projet porte un nom : une histoire, une identité, une attention particulière bien plus qu'un numéro de lot dans une résidence récente en bord de mer.
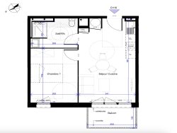
Les atouts de l'appartement : * Résidence de 28 logements avec ascenseur, conforme à la norme RE 2020 ; * Séjour lumineux de 21 m², chambre confortable d'environ 12 m², balcon exposé Ouest d'environ 5 m² ; * Place de parking extérieure privative ; * Résidence sécurisée avec accès contrôlé ; * Local à vélos ; * Eau chaude via ballon thermodynamique & chauffage électrique ; * Pré-équipement pour borne de recharge pour véhicule électrique.
Situation recherchée :?À seulement 15 minutes à pied de la plage, proche du casino, du centre-ville et à deux pas du marais pour vos balades.?Un cadre idéal mêlant tranquillité, bord de mer, nature et accès rapide aux commerces et animations de Villers-sur-Mer.?Un emplacement rare pour une résidence principale, secondaire ou un investissement durable sur la Côte Fleurie.
À noter :? Livraison : fin 2027,? DPE estimé entre A et C (non soumis au DPE),? Les informations sur les risques auxquels ce bien est exposé sont disponibles sur le site : www.georisques.gouv.fr,? Honoraires : charge vendeur,? Illustrations non contractuelles. « Capucine » vous intéresse ? Vous souhaitez en savoir plus sur les lots disponibles ou vérifier votre éligibilité ?? Contactez-nous ! Nous vous guidons pour définir la meilleure stratégie d'achat résidence principale ou investissement locatif optimisé.
Retrouvez-nous sur nos réseaux sociaux : biens, conseils, pédagogie & exclusivités.?ARBOR IMMOBILIER, un cabinet où l'immobilier s'intègre dans une vision patrimoniale globale, avec un accompagnement humain et sur mesure à chaque étape de votre projet.
Mandat présenté par le cabinet ARBOR IMMOBILIER (SIREN 933 179 673), cabinet indépendant & humain, détenteur de la carte professionnelle CPI14012024000000025, délivrée par la CCI de Caen, valable jusqu'au 31/10/2027.?RCS de Caen.
Dans une copropriété de 30 lots. Aucune procédure n'est en cours. Non soumis au DPE. Les informations sur les risques auxquels ce bien est exposé sont disponibles sur le site Géorisques : georisques.gouv.fr.