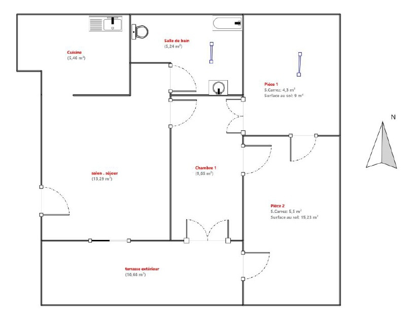
Au coeur du village de LE VAL à quelques minutes en voiture de Brignoles, Appartement de type 3 en rez-de-chaussée de 72 m² composé d'un grand salon séjour avec cuisine ouverte de 36 m2 avec grande baie vitrée, deux chambres de 12.23 m² et 10.19m², d'une salle de bain de 7.67 et d'un wc indépendant. Chauffage électrique. Prévoir quelques travaux de rafraichissements (salle de bain). Accès aux commerces de proximité à pieds et aux écoles maternelles et primaires. Stationnement aisé à proximité de l'appartement. Syndic bénévole, faibles charges / Montant moyen annuel charges : 60 euros par an ce qui comprend l'électricité des parties communes. Nombre de lots de la copropriété : 4 Bel investissement locatif - rendement 6.5% (location estimée à 650 euros /mois).
Honoraires à la charge du vendeur. Dans une copropriété de 4 lots. Quote-part moyenne du budget prévisionnel 60 /an. Aucune procédure n'est en cours. Classe énergie E, Classe climat B Montant estimé des dépenses annuelles d'énergie pour un usage standard : entre 1430.00 et 1980.00 sur les années 2021, 2022 et 2023 (abonnements compris). Les informations sur les risques auxquels ce bien est exposé sont disponibles sur le site Géorisques : georisques.gouv.fr.