Honoraires à la charge de l'acquéreur (Prix hors honoraires : 170000 euros).
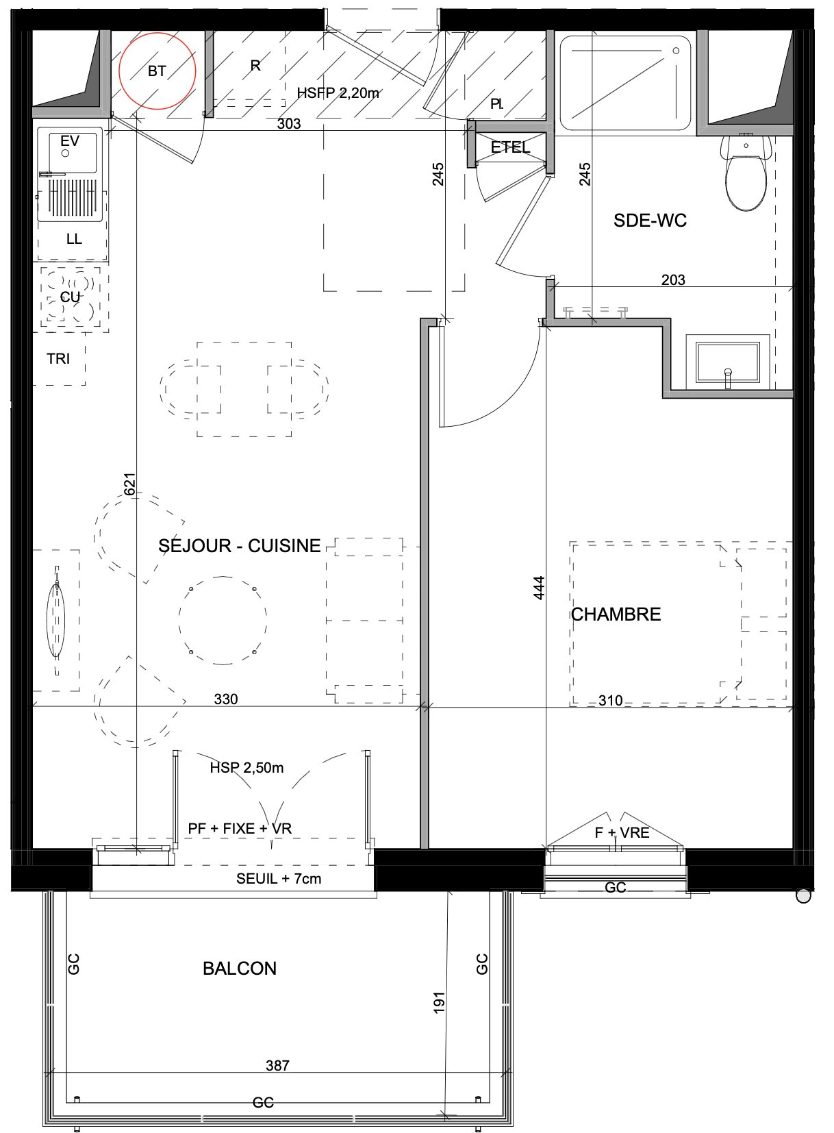
Votre agence LA ROCHELLE FRENCH PROPERTIES vous propose cet appartement T2 idéalement placé sur la commune de PÉRIGNY, à proximité de toutes commodités et du centre-ville, d'une superficie de 45.50 m2 environ en bon état. Situé au 1er et dernier étage d'une résidence entièrement sécurisée sans ascenseur, il se compose d'une une belle pièce de vie avec cuisine ouverte, un cellier, une chambre, une salle d'eau avec wc séparé. Place de parking privée en extérieur. Visite virtuelle sur demande Charges annuelles 760 EUR - Copropriété de lots 8 d'habitation ( 17 lots au total) - Pas de procédure en cours - Coût annuel d'énergie du logement entre 340 EUR et 520 EUR par an - Les informations sur les risques auxquels ce bien est exposé sont disponibles sur le site Géorisques : www. georisques. gouv. Fr Les informations sur les risques auxquels ce bien est exposé sont disponibles sur le site Géorisques : www.georisques.gouv.fr
45.5 m²
3 934 €
24 m²
2
1
1
1
1 sur 1
5.29 %
2011
Est
Ouest
1
Oui (17 lots)
Consommations énergétiques
Logement économe
69
Logement énergivore (kWhEP/m2/an)
Émissions de gaz à effet de serre
Faible émission de GES
2
Forte émission de GES(kgeqCO2/m2/an)
Contact GERMAIN
Contacter gratuitement à l'aide du formulaire ci-dessous.