Honoraires à la charge de l'acquéreur (Prix hors honoraires : 293000 euros).
À vendre Appartement T3 de standing avec parking sécurisé
Découvrez ce magnifique appartement T3 de 69 m² habitables, situé au 3? étage d'un immeuble construit en 2020, en excellent état.
Partiellement meublé alliant modernité et confort, offrant une vue dégagée et une exposition ouest pour des couchers de soleil enchanteurs.
Il se compose comme suit :
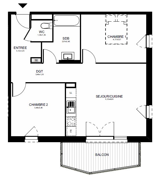
Un espace entrée avec placard, La cuisine ouvre sur un salon lumineux, idéal pour des moments conviviaux. Profitez également d'une très belle terrasse pour vos moments de détente ou entre amis.
Deux chambres spacieuses, une salle de bains et un WC séparé.
L'appartement est équipé d'un chauffage individuel, de fenêtres en PVC/Aluminium à double vitrage et d'un ascenseur pour un accès facilité.
Au rez-de-chaussée s'ajoutent un cellier séparé, une touche de praticité supplémentaire avec une place de parking sécurisée et une en extérieur, un local à vélo commun sécurisé également.
Les transports en commun sont également bien desservis, bus, tramway à proximité, avenue des Pyrénées.
Montant estimé des dépenses annuelles d'énergie pour un usage standard : entre 340 et 510 euros/an (année de référence : 2021) Bien en copropriété de 65 lots dont 30 d'habitations. Charges mensuelles : 80 .
Ce bien est proposé à l'achat pour 306 000 .
Honoraires à la charge de l'acquéreur : 5 % du prix du bien. Taxe foncière : 1340
Référence annonce : VA17006 Date de réalisation du diagnostic : 17/06/2023
Contact : suivi par Grégory HOURCADE 06 82 08 98 78 Agent commercial immatriculé au RSAC de Bordeaux sous le numéro 478304199.
Les informations sur les risques auxquels ce bien est exposé sont disponibles sur le site Géorisques : www.georisques.gouv.fr.
Honoraires inclus de 4.44% TTC à la charge de l'acquéreur. Prix hors honoraires 293 000 . Classe énergie B, Classe climat B Montant moyen estimé des dépenses annuelles d'énergie pour un usage standard, établi à partir des prix de l'énergie de l'année 2023 : entre 340.00 et 510.00 . Les informations sur les risques auxquels ce bien est exposé sont disponibles sur le site Géorisques : georisques.gouv.fr.