34670 - SAINT-BRES - 2 PIÈCES - 1 CHAMBRE - 40 m² - APPARTEMENT AVEC TERRASSE - IDÉAL PREMIER ACHAT
effiCity, l'agence qui estime votre bien en ligne, vous propose cet appartement T2 récent et climatisé, situé dans un quartier paisible de Saint-Brès, à proximité immédiate des commerces et des écoles.
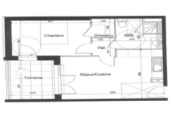
Ce bien de 40 m², situé au rez-de-chaussée surélevé d'un immeuble moderne avec ascenseur et très bien entretenu, offre un cadre de vie agréable et confortable.
Il se compose d'une pièce de vie lumineuse de 20 m² avec cuisine ouverte à réaménager donnant sur une terrasse de 7m² exposée sud-ouest, d'une chambre de 13 m² avec dressing et accès direct à la terrasse, ainsi que d'une salle d'eau avec WC de 5,5m².
Des travaux sont à prévoir, notamment le remplacement de la cuisine et la rénovation des peintures, offrant l'opportunité de personnaliser entièrement l'espace selon vos goûts. Une place de parking privée et sécurisée en sous-sol vient compléter cet appartement.
Ce T2 représente une belle opportunité pour un premier achat ou un investissement. Pour toute information ou pour organiser une visite, vous pouvez me contacter au 06 31 01 81 18 ou par e-mail à jsandoz@efficity.com
Les informations sur les risques auxquels ce bien est exposé sont disponibles sur le site Georisque : georisques. gouv. fr
Jennifer Sandoz - EI - est Agent Commercial mandataire en immobilier, immatriculé au Registre Spécial des Agents Commerciaux du Tribunal de Commerce de Montpellier sous le n°881649263.
Siège social du mandant : effiCity, 48 avenue de Villiers - 75017 PARIS - Société par Actions Simplifiée, société au capital de 132 373,05 euros, immatriculée au RCS Paris 497 617 746 et titulaire de la Carte professionnelle CPI 7501 2015 000 002 025 - CCI Paris IDF - Caisse de Garantie : GALIAN Assurances 89 rue de la Boétie 75008 Paris
40 m²
3 725 €
20 m²
2
1
1
1
2016
Ouest
Oui
Oui
Consommations énergétiques
Logement économe
75
Logement énergivore (kWhEP/m2/an)
Émissions de gaz à effet de serre
Faible émission de GES
10
Forte émission de GES(kgeqCO2/m2/an)
Contact Mme Jennifer Sandoz
Contacter gratuitement à l'aide du formulaire ci-dessous.