Les photos illustrant cette annonce proviennent d'un autre appartement de la résidence. Elles ne représentent pas le logement proposé, mais permettent d'avoir un aperçu des prestations .
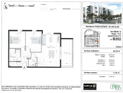
DomUP Location vous propose, sur la commune d'Elne, au sein d'une résidence neuve et sécurisée, un appartement de 62,40 m² avec terrasse et deux places de parking.
Ce logement se compose :
d'un hall d'entrée ouvrant sur une pièce à vivre lumineuse de 30,70 m² avec cuisine aménagée et semi-équipée,
d'un cellier de 2,60 m²,
d'une agréable terrasse de 11,40 m² idéale pour profiter des beaux jours,
côté nuit : deux chambres de 10,20 m² et 11,70 m²,
une salle de bain,
un WC indépendant.
La résidence bénéficie d'un emplacement proche des commodités.
Loyer : 723,56 € charges comprises (ordures ménagères, charges collectives, etc.).
Le loyer inclut deux places de parking (non couvertes).
Loyer payable à terme échu ? sans frais d'agence.
Des références sont exigées. Un dossier complet devra être soumis avant toute visite.
Les informations sur les risques auxquels ce bien est exposé sont disponibles sur le site Géorisques : www. georisques. gouv. fr
62 m²
31 m²
3
2
1
1
2024
Aménagée
Oui
Contact DOMUP
Contacter gratuitement à l'aide du formulaire ci-dessous.