Honoraires à la charge de l'acquéreur (Prix hors honoraires : 172000 euros).
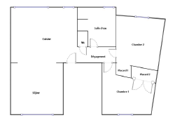
Votre conseillère Maud de Texier NOOVIMO vous propose en exclusivité cet appartement dans le centre bourg de NOZAY, idéalement situé pour profiter de toutes les commodités (commerces, services, écoles...). Entièrement remis à neuf, ce rez-de-jardin de 77 m2 dispose d'une belle pièce de vie d'environ 36 m2, incluant une cuisine semi-équipée, donnant sur une terrasse privative fermée (orientée SUD OUEST), de 2 grandes chambres avec espaces placards, d'une salle d'eau et de WC. Tout à l'égout, chauffage électrique indépendant. Bien dans une petite copropriété (en cours de création) de 3 lots. Prix de vente : 179 900 euros (dont 7900 EUR d'honoraires charge acquéreurs). Nos honoraires sont consultables sur : www.noovimo.fr. Votre agent indépendant inscrit en portage salarial Free cadre sous couvert de la carte T No 4401 2018 000 028 735. Les informations sur les risques auxquels ce bien est exposé sont disponibles sur le site Géorisques : http://www.georisques.gouv.fr - Annonce rédigée et publiée par un Agent Mandataire -
77.18 m²
2 331 €
36 m²
3
2
1
1
4.59 %
Sud
Ouest
Oui (3 lots)
Consommations énergétiques
Logement économe
170
Logement énergivore (kWhEP/m2/an)
Émissions de gaz à effet de serre
Faible émission de GES
6
Forte émission de GES(kgeqCO2/m2/an)
Contact De Texier
Contacter gratuitement à l'aide du formulaire ci-dessous.