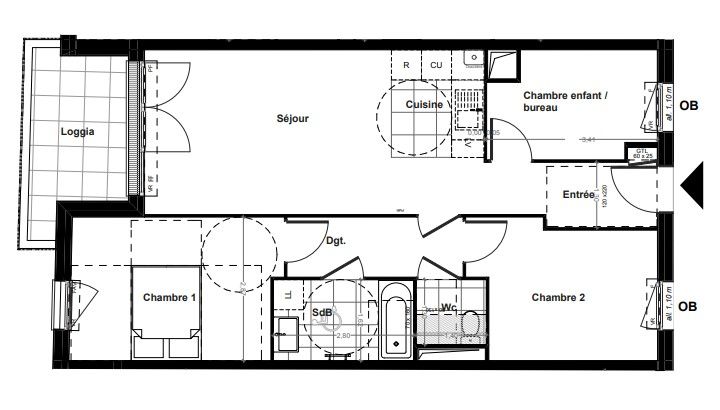
BEAU 3 PIÈCES - BAIGNÉ DE LUMIÈRE - DEUX EXTÉRIEURS Situé à 15 minutes à pied des métros Mairie de Montreuil (ligne 9) et Place Carnot (ligne 11), proche de toutes commodités (supermarché, boulangerie, épicerie, arrêts de bus à moins de 3 min à pied), dans un secteur résidentiel à dominante pavillonnaire, nous vous proposons dans une résidence récente (2021), un bel appartement de trois pièces deux chambres d'une surface de 64m2. Lumineux traversant bien agencé et sans perte de place, il se compose d'une belle pièce de vie 30m2 comprenant une cuisine ouverte aménagée et équipée et un espace salon. Vous retrouvez deux chambres dont une d'une surface de 15m2, une salle d'eau avec douche à l'italienne, un WC séparé, le tout dans un état impeccable. Pendant les beaux jours vous profiterez pleinement de ses deux extérieurs, un balcon filant attenant à la pièce de vie et une terrasse de 8m2 attenante à la plus grande chambre. Charges de copropriété 238 euros/mois comprenant chauffage eau froide eau chaude entretien des parties communes - taxe foncière 1831 euros - double vitrage PVC sur tous les ouvrants - exposition sud-ouest /nord-est - local vélo à disposition - excellent DPE (en C). En préparation de votre prochaine visite, découvrez en totale immersion via le lien ci-dessous la pièce de vie baignée de lumière. Le lien ci-après : https://my.matterport.com/show/?m=xg9786xwqrF Agréable et lumineux cet appartement conviendra parfaitement aux acquéreurs sensibles à la lumière, recherchant un extérieur et ne souhaitant pas faire de travaux. A découvrir sans plus tarder. Copropriété de 100 lots - dont 60 lots habitation. (Pas de procédure en cours). Charges annuelles : 2856 euros.