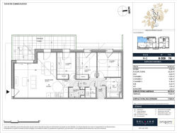
Appartement Saint Pierre En Faucigny 4 pièce(s) 83 m2
Saint-Pierre-en-Faucigny 74800
0
Honoraires à la charge du vendeur.
Nouveau Programme Delajod Promotion à St Pierre en Faucigny - Le Simone 1908 T4 de 83m² au dernier étage avec une magnifique terrasse de 19m² - exposition sud-ouest. Le Simone 1908, nouveau programme signé DELAJOD Promotion Immobilière, est un joyau architectural résolument contemporain qui se distingue par sa personnalité où l'on retrouve uniquement 21 appartements allant du T2 au T5 réunis sur 3 étages. Cette résidence intimiste dévoile un cadre de vie hors du temps avec ses terrasses exceptionnellement grandes et ses jardins arborés. Amoureux de l'excellence artisanale et la performance de l'invisible, Delajod Promotion a placé dans ce programme l'ensemble de ses prestations habituelles que l'on retrouve uniquement chez eux : - Structure en béton banché - Larges baies vitrées coulissantes de marque VEKA France - Cloisons intérieures double peau de 100mm pour un confort acoustique optimal et une résistance accrue - Isolation extérieure avec également un doublage intérieur pour une isolation thermique inégalable - Terrasses 100% étanchées pour assurer la pérennité des façades et éviter tout risque d'infiltration - Utilisation de matières nobles : pierres véritables, verre trempé pour les gardes corps des terrasses, trespa - Portes intérieures cadre faux cadre - Charpente traditionnelle avec chenaux encastrés et rives habillées - PAC individuelle - logements 100% individualisés Deux nouveautés voient le jour dans cette résidence: le rafraichissement au sol et une salle de sport pour les résidents Garages doubles commandés + places extérieures privatives. Le stationnement est plus que généreux et offre un véritable confort au quotidien Le Simone 1908 est situé dans un environnement calme, entièrement scellé, et toutes les commandités sont accessibles à pied à moins de 500m : Collège, Ecole, Salon de thé, centre village, Gare Ceva. Genève et Annecy sont situés à 25 min Copropriété de 21 lots (Pas de procédure en cours). Charges annuelles : 350 euros. Sandrine DELAJOD (EI) Agent Commercial - Numéro RSAC : - .