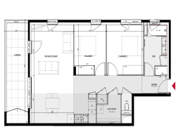
A Sainte Foy Les Lyon, en lisière du 5e arrondissement, je vous propose à la vente ce très bel appartement de 73,70m² avec Terrasse aux dernières normes comprenant : une entrée, un séjour avec cuisine ouverte donnant sur la terrasse de 13,60m², deux chambres, une salle de bain, une buanderie et un WC. Isolation phonique et thermique renforcés, faibles charges. Visuel non contractuel. Merci de contacter votre conseiller Grégory pour plus d'informations Un garage en sous-sol en supplément. Copropriété de 23 lots - dont 23 lots habitation. (Pas de procédure en cours). Charges annuelles : 1200 euros.