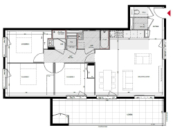
A Sainte Foy Les Lyon, en lisière du 5e arrondissement, je vous propose à la vente ce très bel appartement de 84m² avec Terrasse 23m² aux dernières normes comprenant : une entrée, un séjour avec cuisine ouverte donnant sur la terrasse, trois chambres, une salle de bain, une salle d'eau et un WC. Isolation phonique et thermique renforcés, faibles charges. L'appartement est vendu avec un garage double. Visuel non contractuel. Merci de contacter votre conseiller Grégory pour plus d'informations Copropriété de 23 lots - dont 23 lots habitation. Charges annuelles : 1500 euros.