Appartement sécurisé sur Rouen avec terrasse et ascenseur - T4 de 92.57 à 95.83m²
Rouen 76100
0
Honoraires à la charge du vendeur.
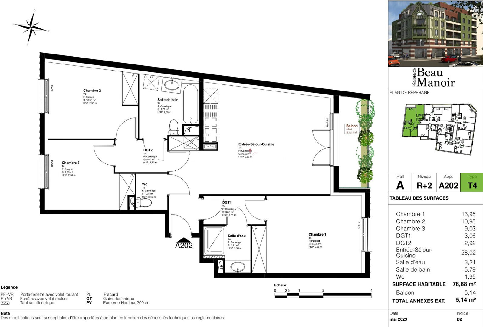
Espace Immo vous propose cette résidence dans un contexte de réhabilitation d'un immeuble ancien et sécurisé situé sur Rouen, une commune attractive à proximité des transports, des commodités et des écoles. Cette résidence vous offrira de très belles prestations aussi bien pour une résidence principale que pour un investissement en loi Pinel. Quatre beaux appartements T4 sont encore disponibles, de 305 000 euros à 321 000 euros, ils comprennent un beau séjour lumineux avec cuisine, 3 chambres, une salle d'eau et une salle de bains. Vous pourrez profiter d'un balcon, d'un loggia ou d'une terrasse selon les appartements, parking extérieur privé et couvert. Certains appartements sont chauffés au gaz de ville et d'autres en électrique, menuiseries en PVC double vitrage, volets roulants manuels. La livraison est prévue pour le 2ème trimestre 2025. Frais de notaire réduits. Venez découvrir cette résidence avec votre agence ESPACE IMMO, d'autres appartements sont disponibles du T2 au T4 à partir de 187 000 euros !! Copropriété de 67 lots - dont 34 lots habitation. (Pas de procédure en cours). Charges annuelles : 840 euros.