Appartement St Vincent De Tyrosse 3 pièce(s) 58 m2
Saint-Vincent-de-Tyrosse 40230
0
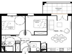
A proximité du centre ville, dans un écrin de verdure bel appartement aux prestations soignées disposant de deux chambres, de rangements, d'une terrasse fonctionnelle ainsi que de deux places de parking individuelles.
En parfait état, vous n'avez plus qu'à poser vos valises.
Le DPE est en cours.
Prix: 232500 euros charge vendeur.
Pour visiter et vous accompagner dans votre projet, contactez Olivier CAPLONG, au 0680438404 ou, par courriel à o.caplong@proprietes-privees.com.
Selon l'article L.561.5 du Code Monétaire et Financier, pour l'organisation de la visite, la présentation d'une pièce d'identité vous sera demandée.
Cette présente annonce a été rédigée sous la responsabilité éditoriale de Olivier CAPLONG agissant sous le statut d'agent commercial immatriculé au RSAC bayonne 893 117 507 auprès de SAS PROPRIETES PRIVEES, au capital de 44 920 euros, ZAC LE CHÊNE FERRÉ - 44 ALLÉE DES CINQ CONTINENTS 44120 VERTOU; SIRET 487 624 777 00040, RCS Nantes. Carte Professionnelle Transactions sur immeubles et fonds de commerce (T) et Gestion immobilière (G) n°CPI 4401 2016 000 010 délivrée par la CCI Nantes - Saint Nazaire. Compte séquestre n°30932508467 BPA SAINT-SEBASTIEN-SUR-LOIRE (44230). Garantie GALIAN-SMABTP - 89 rue de la Boétie, 75008 Paris - n°28137 J pour 2 000 000 euros pour T et 120 000 euros pour G. Assurance responsabilité civile professionnelle par GALIAN-SMABTP n° de police 28137.J
Mandat réf : 399430 - Le professionnel garantit et sécurise votre projet immobilier.
Olivier CAPLONG (EI) Agent Commercial - Numéro RSAC : bayonne 893 117 507 - .
58 m²
4 009 €
3
2
Ouest
Nord
Oui
Contact Olivier CAPLONG
Contacter gratuitement à l'aide du formulaire ci-dessous.