Honoraires à la charge de l'acquéreur (Prix hors honoraires : 57000 euros).
Studio Meublé avec Vue Montagne et Piscine chauffée Nous vous présentons un appartement meublé, niché au coeur d'un environnement privilégié, offrant une vue imprenable sur les montagnes. Construit en 2008, cet appartement de standing se situe au 3ème étage d'un immeuble de 4 étages, doté d'un ascenseur pour un accès facile et confortable.
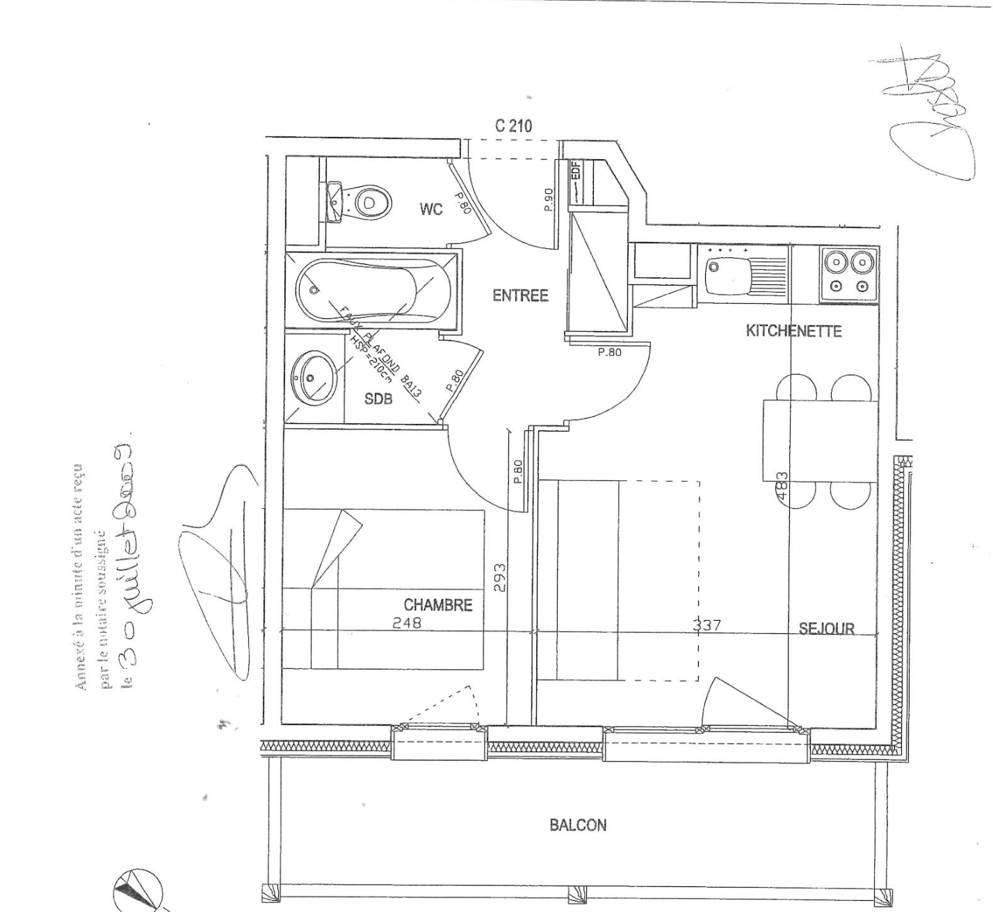
Avec une surface habitable de 20,7 m², une surface au sol de 25 m² et un balcon de 4m² avec vue panoramique sur le domaine skiable, ce studio est idéal pour ceux qui recherchent un espace de vie fonctionnel et agréable.
Ce studio est implanté dans une résidence de loisir sous bail de gestion commerciale.
Imaginez vous vivre dans ce cadre enchanteur, où chaque matin, vous pourrez admirer la beauté des montagnes depuis votre balcon. Profitez de la piscine extérieure chauffée, du sauna, de l'espace fitness pour des moments de détente et de relaxation.
Découvrez le domaine des Sybelles®, au coeur de la nature en Savoie, dans la vallée de la Maurienne. Les Sybelles® représentent le 1er domaine skiable de Maurienne ainsi que le 4ème domaine de France ! En effet, vous pourrez vous aventurer dans la montagne de multiples manières, en ski bien sûr, au travers les 136 pistes (310 km) et les 67 remontées mécaniques du domaine, mais aussi en raquettes, ski de randonnée Les possibilités sont nombreuses pour ravir tout un chacun dans ce domaine s'étendant entre 1100 et 2620 mètres d'altitude.
Contactez nous pour tous renseignements complémentaires ainsi que pour en organiser la visite.
Honoraires inclus de 5% TTC à la charge de l'acquéreur. Prix hors honoraires 57 000 . Dans une copropriété de 236 lots. Aucune procédure n'est en cours. Classe énergie E, Classe climat D Montant estimé des dépenses annuelles d'énergie pour un usage standard : entre 660.00 et 930.00 sur les années 2021, 2022 et 2023 (abonnements compris). Les informations sur les risques auxquels ce bien est exposé sont disponibles sur le site Géorisques : georisques.gouv.fr. . Contactez notre Service Transaction
20.72 m²
2 889 €
4 m²
17 m²
1
1
1 (séparé)
3 sur 4
5 %
185.00 € / mois
Oui
2008
Est
1 (4 m²)
Oui
1
Oui
Oui
Oui (236 lots)
Consommations énergétiques
Logement économe
303
Logement énergivore (kWhEP/m2/an)
Émissions de gaz à effet de serre
Faible émission de GES
38
Forte émission de GES(kgeqCO2/m2/an)
Contact Michel ZANETTI
Contacter gratuitement à l'aide du formulaire ci-dessous.