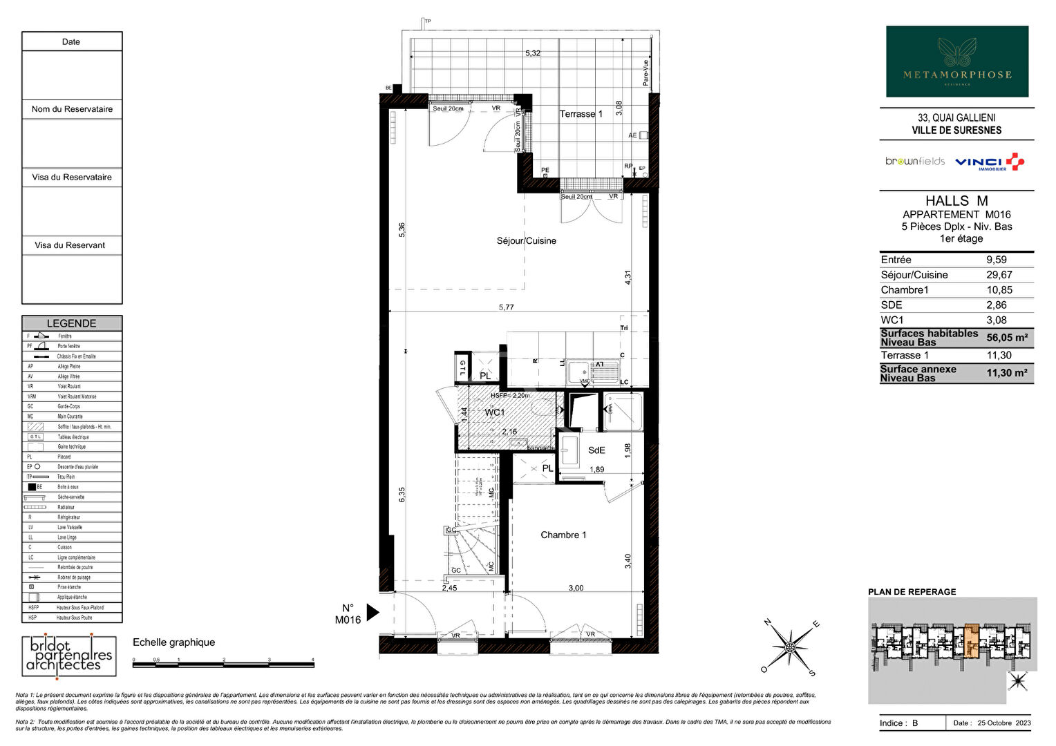
Appartement Suresnes 4 pièce(s) 97.10 m2 FRAIS DE NOTAIRE OFFERTS
Suresnes 92150
0
Prochainement à Suresnes Une nouvelle adresse intimiste et d'exception Devenez propriétaire d'un appartement neuf au coeur d'un cadre résidentiel prisé, à deux pas du centre-ville et du Mont-Valérien. Située 30 rue Merlin de Thionville, la résidence bénéficie d'un emplacement privilégié, à proximité immédiate du tramway T2 (station Suresnes?Longchamp), des lignes de train L et U, ainsi que de plusieurs bus reliant La Défense et Paris. Dans un quartier calme et recherché, à proximité des commerces, écoles et espaces verts, vous profiterez d'un cadre de vie à la fois paisible et connecté. Cette résidence élégante et à taille humaine accueille seulement 14 appartements du 2 au 5 pièces, la plupart prolongés de beaux espaces extérieurs : loggias, terrasses ou jardins privatifs. Contactez-nous dès maintenant pour plus d'informations et pour organiser une visite ! LES + ARGOS CONSEIL : Prix direct promoteur (possibilité d'offres commerciales ou de frais de notaire offerts selon offres commerciales) Possibilité de rendez vous physique dans nos bureaux Accès à plus de 600 programmes en Ile de France et 3.000 en France Frais de notaire réduits ou offerts Possibilité de TVA réduite (Selon éligibilité) Accompagnement dans les démarches administratives et suivi avec les promoteurs Accompagnement dans la sélection de biens immobiliers Les honoraires sont à la charge du vendeur Accompagnement dans l'obtention du financement