Forom Immobilier vous propose en exclusivité ce bel appartement T1 d'une surface de 32,25 m² situé au rez-de-chaussée (côté intérieur de la résidence) dans une résidence de 2012 sur la commune de Nîmes.
Actuellement loué 446 CC, date de fin de bail 23/06/2026. Rentabilité brute 8% !!
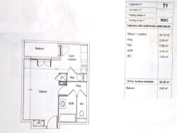
Ce bien se compose de la façon suivante : un salon donnant sur le balcon, une cuisine ouverte équipée, une salle de bains, un WC séparé et une place de parking.
Informations clés :
- Chauffage et eau chaude individuels électriques
- Diagnostic de Performance Énergétique : C
- Montant des charges annuelles : 572
- Taxe Foncière 2024 : 889.
- Nombre de lots : 226
Honoraires charges vendeur.
Honoraires à la charge du vendeur. Dans une copropriété de 226 lots. Aucune procédure n'est en cours. Classe énergie C, Classe climat A Montant moyen estimé des dépenses annuelles d'énergie pour un usage standard, établi à partir des prix de l'énergie de l'année 2023 : entre 400.00 et 580.00 . Les informations sur les risques auxquels ce bien est exposé sont disponibles sur le site Géorisques : georisques.gouv.fr.
32.25 m²
2 155 €
4 m²
1
1
1
47.69 € / mois
2012
Sud
1 (4 m²)
1
Oui
Oui (226 lots)
Consommations énergétiques
Logement économe
174
Logement énergivore (kWhEP/m2/an)
Émissions de gaz à effet de serre
Faible émission de GES
5
Forte émission de GES(kgeqCO2/m2/an)
Contact Forom® Immobilier
Contacter gratuitement à l'aide du formulaire ci-dessous.