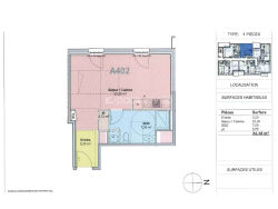
Votre agence ESPACE IMMO vous propose ce studio fonctionnel et lumineux, situé en plein coeur de Maromme, à proximité immédiate des commerces, des transports et des services du quotidien. La résidence offre des prestations de qualité et un cadre agréable. L'entrée dispose d'un placard de rangement, idéal pour optimiser l'espace. La pièce principale est ouverte sur la cuisine, équipée des attentes nécessaires pour l'aménagement selon vos besoins. Vous trouverez également : une salle de douche avec vasque et WC, un espace lumineux et fonctionnel, parfaitement adapté à la vie quotidienne ou à la location. La résidence bénéficie d'une conception soignée avec une bonne isolation thermique pour un confort optimal. !! Localisation recherchée !! Située aux portes de Rouen, Maromme offre un cadre de vie agréable entre confort urbain et espaces verts. Les points forts de la commune : Transports efficaces : ligne 41 du Réseau Astuce, accès rapide à Rouen via l'A150. Vie locale dynamique : équipements sportifs, associations, événements culturels. Services et commerces : écoles, collèges, commerces de proximité. Cadre naturel : parcs, promenades le long de la Seine, espaces verts pour se détendre. Ce studio est parfait pour : - un étudiant proche du Campus Universitaire de Mont-Saint-Aignan, - un investissement locatif, - ou une première acquisition pratique et fonctionnelle. Contactez l'agence ESPACE IMMO, nous serons ravis de vous fournir plus d'informations ou d'organiser une visite. Les informations sur les risques auxquels ce bien est exposé sont disponibles sur Géorisques.