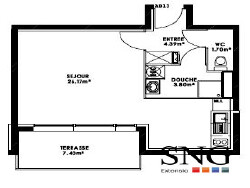
Résidence Virginie, agréable appartement T1 de 36 m² avec grand séjour, coin cuisine équipée, terrasse et parking privatif. Idéal pour de l'investissement locatif avec une rentabilité brute de 8,70% (loyer HC 400/mois). Copropriété fermée, sécurisée et bien entretenue proche du centre ville. Pour tous renseignement contactez le 06x85x06x65x92
Honoraires à la charge du vendeur. Dans une copropriété de 88 lots. Quote-part moyenne du budget prévisionnel 822 /an. Aucune procédure n'est en cours. Classe énergie D, Classe climat A Montant estimé des dépenses annuelles d'énergie pour un usage standard : entre 640.00 et 900.00 sur les années 2021, 2022 et 2023 (abonnements compris). Les informations sur les risques auxquels ce bien est exposé sont disponibles sur le site Géorisques : georisques.gouv.fr.
Carte pro. CPI 1310 2016 000 009 075 AC ADC 1310 2019 000 199 987 Retrouvez l'annonce de l'agence immobilière SNG Extensia sur : https://www.sng-immobilier.com/ref/VA34567
35.83 m²
1 535 €
26 m²
1
1
1 (séparé)
1
68.00 € / mois
2007
1
1
Oui
Oui (88 lots)
Consommations énergétiques
Logement économe
206
Logement énergivore (kWhEP/m2/an)
Émissions de gaz à effet de serre
Faible émission de GES
6
Forte émission de GES(kgeqCO2/m2/an)
Contact Jean-Luc FERRANDIS
Contacter gratuitement à l'aide du formulaire ci-dessous.