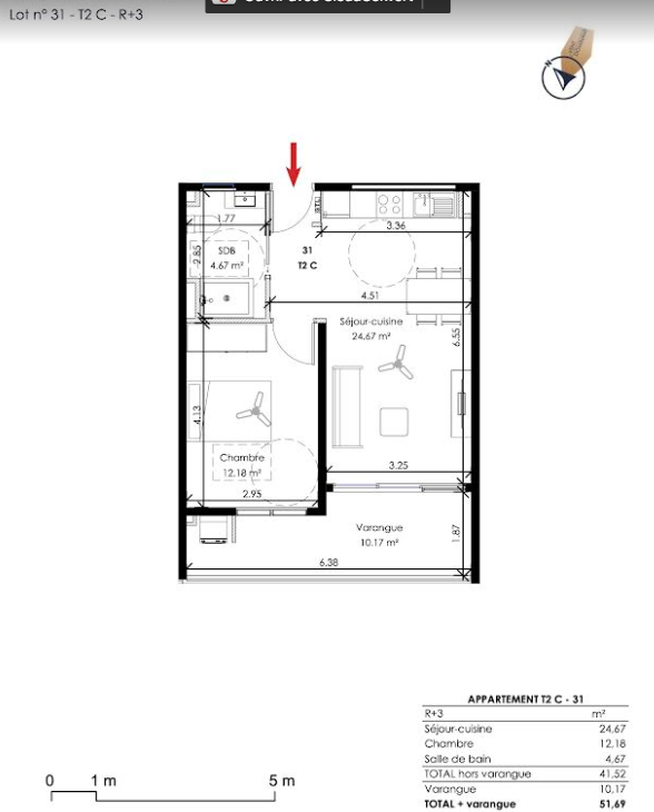
Retrouvez notre nouveau programme immobilier neuf ' La Résidence Harmonie' : La résidence Harmonie se déploie en 6 bâtiments composés de T1, T1 bis, T2 et T3. Nichée dans un écrin de verdure et certifiée NF Habitat, elle offre à ses résidents des prestations de grande qualité : 83 places de parking dont 2 PMR, espaces verts, pergola, piscine, locaux vélos et poussettes, débords de toiture protégeant des intempéries et du fort ensoleillement, ascenseurs, varangues. Tous les appartements T1, T1 BIS, T2 et T3 disposent en qualité de matériaux et d'infrastructure autours les donneées suivantes :
PORTE D'ENTRÉE EN BOIS DE GUYANE AVEC SERRURE 3 POINTS ; o SOL EN GRÈS CÉRAME ; o PEINTURE VELOURS BLANC DANS LES PIÈCES SÈCHES, PEINTURE SATINÉE BLANCHE DANS LES PIÈCES HUMIDES ; o PORTE-FENÊTRE EN ALUMINIUM PRÉLAQUÉ DANS SÉJOUR ; o JALOUSIES EN ALUMINIUM PRÉLAQUÉ ET LAMES EN VERRE ; o VARANGUE AVEC BARDAGE EN RÉSILLE, EN BOIS DE GUYANE ; o CUISINE : PLAN DE TRAVAIL AVEC ÉVIER ENCASTRÉ, CRÉDENCE EN ALUCOBOND OU CÉRAMIQUE ; o SALLE DE BAIN : DOUCHE ITALIENNE, FAÏENCE MURALE, VASQUE ; o CERTIFICATION NF HABITAT ACCES RÉSIDENCE PAR PORTAIL COULISSANT ET PORTILLON PIÉTON ; o 83 PLACES DE PARKING DONT 2 PMR ; o ESPACES VERTS PUBLICS ; o ZONE VERTE AMÉNAGÉE EN BELVÉDÈRE AVEC PERGOLA ; o PISCINE ; o LOCAUX VÉLOS ET POUSSETTES ; o ASCENSEURS ; o CAVES ; o CHAUFFE-EAU SOLAIRE COLLECTIF CENTRALISÉ POUR LES BÂTIMENTS A, B ET C ; o EAU CHAUDE PRODUITE PAR THERMOSIPHONS POUR LES BÂTIMENTS D, E ET F ; o NORME RTAA DOM.
Situé dans la partie sud du territoire de la commune de RémireMontjoly, sur les terrains dits de Vidal, l'écoquartier Georges Othily jouxte d'un côté des zones résidentielles, et de l'autre, de vastes espaces naturels. Il intègre les caractéristiques du développement durable : le respect des paysages et des éléments naturels, l'optimisation des ressources du site pour l'aménagement des réseaux, des constructions durables qui se distinguent notamment par une architecture bioclimatique, une performance énergétique remarquable et l'utilisation de matériaux locaux. Inauguré en 2019, le projet a été pensé pour respecter au maximum la topographie des lieux. Respectueux de l'environnement, le quartier favorise également les mobilités douces par ses cheminements piétonniers et ses pistes cyclables, et il encourage le vivre-ensemble grâce à la présence de nombreux jardins partagés et places publiques. Pour un investissement locatif ; Le dispositif Super Pinel Outre-Mer vient cohabiter avec la loi Pinel actuelle. Il s'enrichit de normes écologiques et de confort. En investissant en 2024 en Super Pinel Outre-Mer, vous pouvez bénéficier de la réduction d'impôt maximale soit 96 000 EUR sur 12 ans. o L'économie d'impôt peut être étalée soit sur 6 ans, prorogeable 2 fois 3 ans, ou sur 9 ans, prorogeable 1 fois 3 ans. o Super Pinel Outre-Mer : le taux de la réduction selon la durée de l'engagement est de 23 % pour 6 ans, de 29 % pour 9 ans et de 32 % pour 12 ans. o Plafonnement des ressources des locataires et du montant des loyers. o L'investissement est limité à 300 000 EUR et à 2 logements maximum par an. o Engagement de location sur 6, 9 ou 12 ans. o Le plafonnement des niches fiscales est de 18 000 EUR par an contre 10 000 EUR en métropole Possibilité d'opter pour des sociétés soumises à l'IS pour un crédit d'impôt de 35 % de l'investissement sous certaines conditions. Amortissement comptable de l'investissement sur 30 ans. Honoraire à la charge du vendeur. Référence mandat 2144. Contactez votre conseiller Km Immo Neuf au 0694 438822 pour avoir plus d'information. SAS KM IMMO Votre partenaire immobilier 0694 438822
32.8 m²
5 183 €
32 m²
1
1
1
1
2025
Oui
Contact KM Immobilier agence Montabo
Contacter gratuitement à l'aide du formulaire ci-dessous.