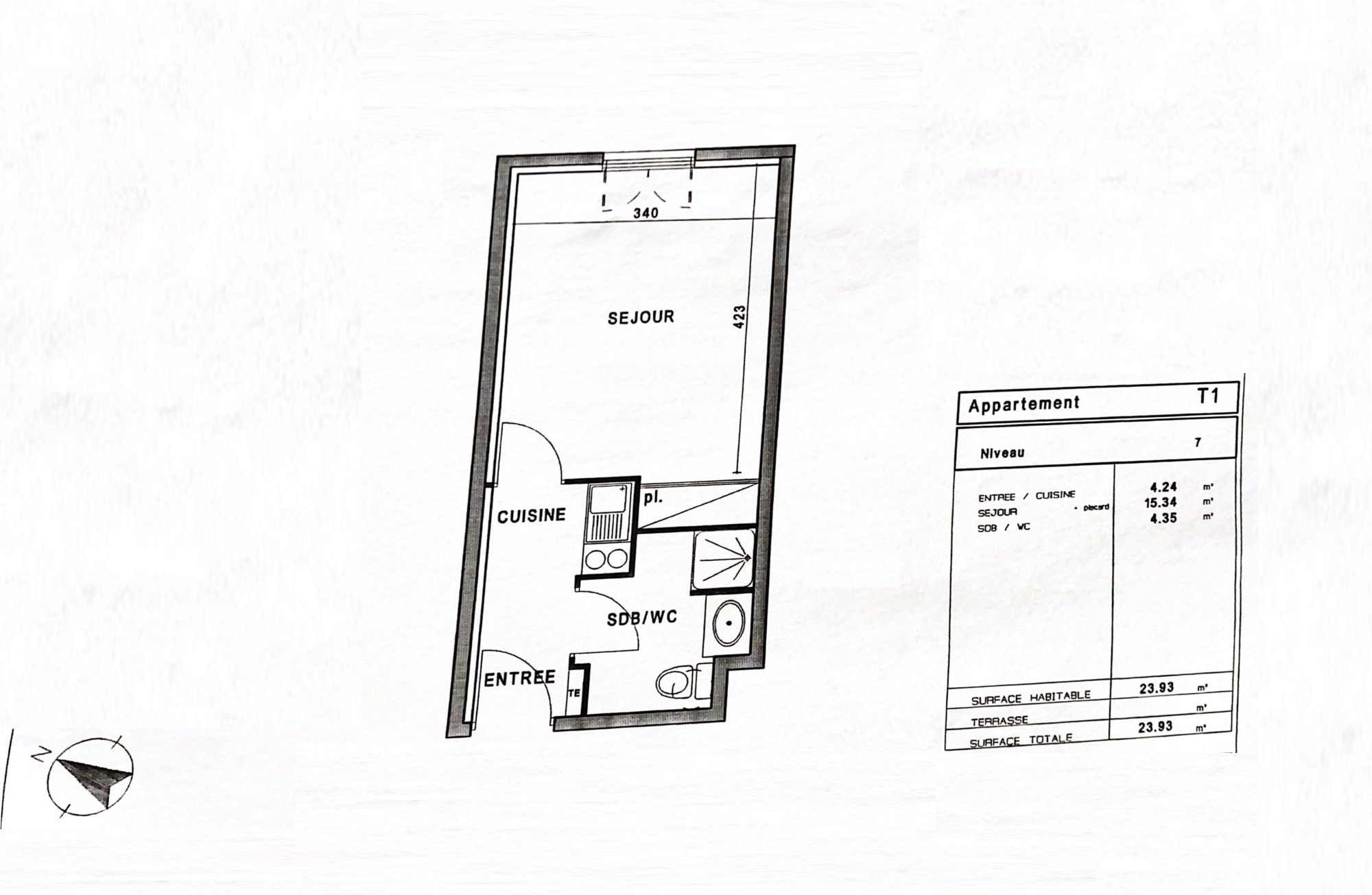
Appartement T1 de 24 m² avec cuisine séparée, Idéal pour un
Marseille 13003
0
Honoraires à la charge du vendeur.
Appartement T1 de 24 m² avec cuisine séparée, Idéal pour un investisseur à la recherche d'un excellent rendement locatif ou pour un premier achat, ce bien a tout pour séduire, situé au 1er et dernier étage, il a bénéficié d'une rénovation récente, incluant l'installation d'une climatisation réversible dans toutes les pièces, pour un confort optimal toute l'année. L'appartement se distingue par son séjour spacieux et lumineux, offrant une pièce de vie agréable et conviviale, parfaite pour optimiser l'espace et le bien-être au quotidien. Implanté dans un quartier dynamique et recherché proche de la Belle de Mai, il profite d'un emplacement privilégié à proximité immédiate de toutes les commodités et des transports en commun. En moins de 10 minutes à pied, vous accédez aux crèches, écoles (maternelles, élémentaires, collèges), commerces alimentaires, restaurants, parcs et jardins, ainsi qu'aux médecins généralistes. Les points clés : faibles charges, forte attractivité locative, bon rendement locatif, proximité des axes autoroutiers. Une opportunité rare, alliant emplacement stratégique, confort et fort potentiel locatif. A visiter sans tarder ! Ce bien fait partie d'une copropriété de 39 lots, régie par la loi N°65-557 du 10 juillet 1965. Gestion: Aucune procédure en cours menée sur le fondement des articles 29-1 A et 29-1 de la loi du 10 juillet 1965 et de l'article L.615-6 du CCH. Les informations sur les risques auxquels ce bien est exposé sont disponibles sur le site Géorisques : www.georisques.gouv.fr. Bien proposé au prix de 54.000 comprenant les honoraires d'agence à charge du vendeur, barème consultable sur le site Immo Angels. Rédacteur chargé de commercialisation : E.I. Jean-Michel GENNA, RSAC: 485 192 546 Salon de Provence, joignable au : O750461972
Honoraires à la charge du vendeur. Dans une copropriété de 39 lots. Aucune procédure n'est en cours. Classe énergie D, Classe climat B Montant estimé des dépenses annuelles d'énergie pour un usage standard : entre 590.00 et 860.00 sur les années 2021, 2022 et 2023 (abonnements compris). Les informations sur les risques auxquels ce bien est exposé sont disponibles sur le site Géorisques : georisques.gouv.fr.