Appartement T1 de 31.7 m2, très haut de gamme en plein coeur
Montpellier 34000
0
Honoraires à la charge du vendeur.
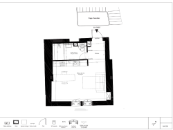
Elligible au régime fiscal dit 'Malraux', venez découvrir ce bel appartement T1 en R+2 en cours de rénovation au sein d'une copropriété située dans un exceptionnel hôtel particulier (Vente d'un Immeuble à Rénover) dans le centre historique de Montpellier. Ce bel appartement est accessible depuis la cour intérieure arborée puis la cage d'escalier majestueuse et sera composé au second étage d'une entrée de 3.2 m2 qui donne accès à la pièce de vie avec un linéaire de cuisine aménagée et semi-équipée, une salle de douche avec wc suspendu complète le bien. Des prestations de grandes qualités dans cet environnement d'exception vous attendent et ce programme sera conforme : A la Nouvelle Réglementation Acoustique (NRA), à la norme électrique NF C 15-100, à la réglementation thermique RT Rénovation légère. Pour plus de renseignements sur le dispositif Malraux et sur ce bien je vous invite à nous contacter. Pour tout complément d'information et de visite nous restons disponibles par téléphone - 06 95 11 52 68 - Marion TIZI - Agent Commercial - ARE Immo - Immatriculation au Registre Spécial des Agents Commerciaux No 887 741 395 - Montpellier. Sous la Carteprofessionnelle no : CPI 3402 2020 000 045 070. Valable jusqu'au : 21/10/2026. Délivrée par: CCI de Hérault.'Les informations sur les risques auxquels ce bien est exposé sont disponibles sur le siteGéorisques http://www.georisques.gouv.fr'.
31.7 m²
9 148 €
5 m²
23 m²
1
1
1
1
2 sur 2
Est
1 (5 m²)
Oui (9 lots)
Contact TIZI
Contacter gratuitement à l'aide du formulaire ci-dessous.