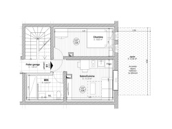
Cet appartement est situé dans une petite copropriété, à 600 m du centre de la station de Pralognan-La-Vanoise. Idéal pour investissement locatif ou logement de saisonnier. Deux possibilités d'acquisition s'offrent à vous : L'achat du plateau brut ou l'achat de l'appartement entièrement aménagé. Au Rez-de-Chaussée inférieur d'une copropriété au charme montagnard, cet appartement pourrait comprendre : Une cuisine ouverte sur séjour / salle à manger, une salle d'eau avec WC et une chambre. En annexe : un casier à skis, une place de parking et un jardin accessible par l'extérieur. Disponibilité courant 1er semestre 2026. Bien soumis au statut de la copropriété. Lots dans la copropriété : 6 Charge courante par an : 400 EUR. Aucune procédure en cours. Les honoraires sont à la charge du vendeur. Cette annonce vous est proposée par Blanc Martine - - NoRSAC: 885051607, Enregistré au Greffe du tribunal de commerce de Chambéry A visiter rapidement !
29 m²
3 414 €
11 m²
2
1
1
1
Oui
2001
Sud
1
Oui (164 lots)
Contact Agence Vivet Immobilier
Contacter gratuitement à l'aide du formulaire ci-dessous.