En rez-de-chaussée d'une résidence calme, sécurisée et proche des commodités, nous vous proposons cet appartement T2 destiné uniquement à de l'investissement locatif.
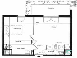
D'une surface de 40m2, il est agencé comme suit : Une entrée avec placard, une séjour avec coin cuisine de 21m2 et accès à une agréable terrasse, une grand chambre avec placard de plus de 13m2 ainsi qu'une salle d'eau avec WC. À ce lot s'ajoute un emplacement de stationnement aérien.
Le bien est vendu loué avec un locataire en place depuis 2013, sans aucun impayé de loyer et qui entretien bien l'appartement.
Éléments financiers : - Loyer : 496,40 hors charges + 29 de provisions sur charges du locataire, soit 525,40 /mois charges comprises - Charges de copropriété : 55 /mois - Taxe foncière : 598 /an dont 129 de TOM
Honoraires à la charge du vendeur.
Pour toute information ou demande de visite, contactez-nous !
Dans une copropriété de 93 lots. Quote-part moyenne du budget prévisionnel 653 /an. Aucune procédure n'est en cours. Classe énergie C, Classe climat C Montant estimé des dépenses annuelles d'énergie pour un usage standard : entre 470.00 et 680.00 sur les années 2021, 2022 et 2023 (abonnements compris). Les informations sur les risques auxquels ce bien est exposé sont disponibles sur le site Géorisques : georisques.gouv.fr.
40.63 m²
3 347 €
21 m²
2
1
1
1
55.00 € / mois
Ouest
Nord
1
1
Oui (93 lots)
Consommations énergétiques
Logement économe
104
Logement énergivore (kWhEP/m2/an)
Émissions de gaz à effet de serre
Faible émission de GES
19
Forte émission de GES(kgeqCO2/m2/an)
Contact C2i SUD OUEST
Contacter gratuitement à l'aide du formulaire ci-dessous.