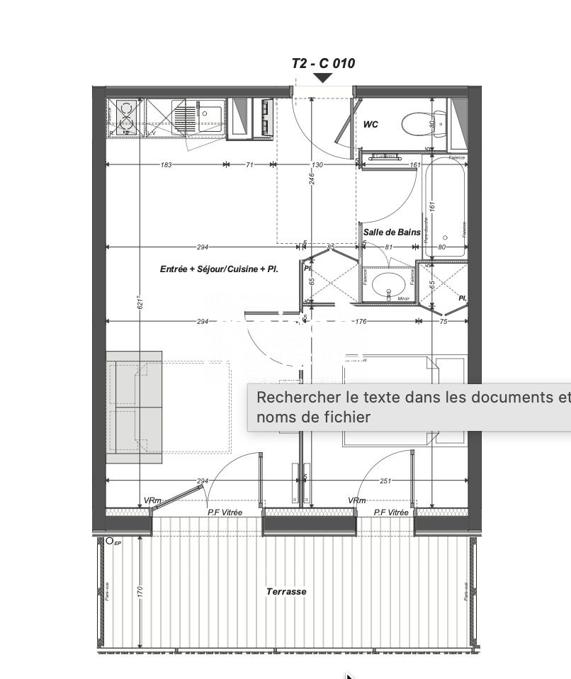
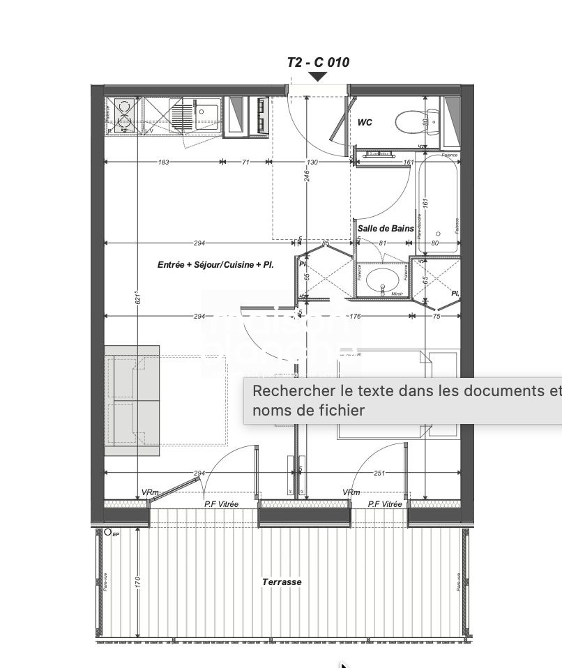
Au coeur du bourg, à moins d'un kilomètre du lac, à deux pas du marché, des commerces et à proximité des écoles, découvrez ce programme neuf intimiste. La résidence propose 16 logements répartis sur deux étages, ainsi que deux ccommerciales en rez-de-chaussée. Conçue selon les normes environnementales RE 2020, elle offre des prestations de qualité dans un cadre agréable et pratique au quotidien. Nous vous présentons un appartement T2 (Etage 1) d'une surface de 41,96 m2 orienté Nord-Est, comprenant un séjour avec cuisine ouverte, une chambre, une salle d'eau, WC indépendant et une loggia. Un local à vélos commun ainsi qu'une place de stationnement privative complètent ce bien. Livraison prévue pour le 3ème trimestre 2027, Frais d'agence pris en charge par le promteur et les frais de notaire réduits.
41.96 m²
5 124 €
20 m²
2
1
1
1
1 sur 2
30/09/2027
2027
Est
Nord
1
Oui (36 lots)
Contact Cabireau Immobilier
Contacter gratuitement à l'aide du formulaire ci-dessous.