Honoraires à la charge de l'acquéreur (Prix hors honoraires : 236400 euros).
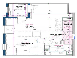
Découvrez ce magnifique appartement T2 neuf, une pépite architecturale qui allie modernité et confort. Construit en 2025, cet appartement de 54,02 m² vous offre un cadre de vie lumineux et spacieux, idéal pour les couples ou les professionnels en quête d'un nid douillet. Imaginez-vous dans ce havre de paix, où chaque détail a été pensé pour votre bien-être. La terrasse de 5 m² vous invite à des moments de détente en plein air, bercés par la douceur du soleil. L'appartement, non meublé, vous permet de laisser libre cours à votre créativité pour créer un intérieur qui vous ressemble. Situé dans un quartier dynamique et bien desservi, cet appartement est à seulement 5 minutes à pied des arrêts de bus et des restaurants, où vous pourrez savourer des mets délicieux. Les amateurs de nature apprécieront la proximité d'un parc et jardin, accessible en 10 minutes en voiture, parfait pour des promenades en famille ou entre amis. Les familles seront ravies de savoir que plusieurs écoles (maternelle, élémentaire, collège) sont à moins de 10 minutes à pied. De plus, une crèche est également à 5 minutes à pied, offrant une solution pratique pour les jeunes parents. Les commodités du quotidien sont également à portée de main, avec plusieurs commerces d'alimentation générale et médecins généralistes à 5 minutes à pied. En cas d'urgence, un hôpital est accessible en 15 minutes à pied. Et pour ceux qui travaillent à distance ou aiment le haut débit, sachez que cet appartement est éligible à la fibre optique. Ne manquez pas cette opportunité unique de vivre dans un appartement neuf, alliant confort, modernité et emplacement privilégié. Contactez-nous dès maintenant pour une visite et laissez-vous séduire par ce petit coin de paradis.
Classe énergie A, Classe climat A Montant estimé des dépenses annuelles d'énergie pour un usage standard : entre 400.00 et 500.00 sur les années 2021, 2022 et 2023 (abonnements compris). Les informations sur les risques auxquels ce bien est exposé sont disponibles sur le site Géorisques : georisques.gouv.fr.