Idéalement placé aux portes de la forêt du Bourgailh, des commerces, d'un marché, des transports en commun et des écoles, il offre un cadre de vie confortable, verdoyant et pratique.
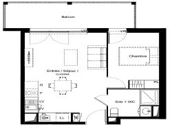
Situé au premier et dernier étage, sans vis-à-vis, cet appartement dispose d'une grande pièce de vie avec accès à la terrasse depuis le séjour et la chambre. Profitez également d'une salle d'eau avec Wc et de plusieurs rangements.
Ce logement aux prestations soignées et modernes, en conformité avec la norme RE2020, garantit une habitation à la fois respectueuse de l'environnement et économe en énergie.
Un parking en sous-sol sécurisé complète ce bien (en SUS obligatoire 12 000 ).
-Frais de notaires réduits -Garanties du neuf -PTZ possible -RE2020 -...
Contactez-moi pour plus d'informations ou pour organiser une visite.
APPARTEMENT T2 À PESSAC AVEC TERRASSE ET PARKING
Honoraires à la charge du vendeur. Dans une copropriété de 94 lots. Aucune procédure n'est en cours. DPE en cours. Les informations sur les risques auxquels ce bien est exposé sont disponibles sur le site Géorisques : georisques.gouv.fr.