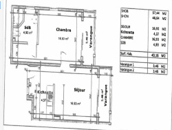
Appartement T2 secteur Baduel Superficie 43,16 M2 + 2 balco
Cayenne 97300
0
Les charges de location sont prévisionnelles mensuelles avec régularisation annuelle.
La part des honoraires pour la réalisation de létat des lieux de ce bien est de 129.47999572754 euros.
Cet appartement de type 2 d'une superficie habitable de 43.16 m2 au sein d'une copropriété de 48 logement sur deux bâtiments est très bien situé sur la route de Baduel. Il comprend un séjour, une cuisine , une chambre climatisée , deux balcons et une une place de parking. Il est disponible immédiatement dans cette résidence sécurisée avec portail et digicode. Loyer mensuel : 690 euros + 40 euros de charges Honoraire à la charge du locataire : 561.08 euros dont 129,48 euros pour l'état des lieux. Dépôt de garantie : 690 euros Disponibilité Immédiate . Ref mandat M25 Visitez avec votre conseiller location Km Immo au 0694 438822. SAS KM IMMO Votre partenaire immobilier 0694 438822
43.16 m²
16 m²
2
1
1
1
1
1 sur 2
431.59999999999997 %
40 € / mois
2011
1
Oui
Oui
Contact KM Immobilier agence Montabo
Contacter gratuitement à l'aide du formulaire ci-dessous.