Découvrez cet Appartement T2 vendu loué à Bihorel. Situé dans le charmant quartier du chapitre à Bihorel, cet appartement T2 de 43m² se trouve dans un immeuble construit en 2014. Idéal investisseur, celui-ci est vendu loué pour 795/mois charges comprises. Il offre un intérieur en parfait état, conçu pour offrir un maximum de confort.
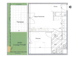
Il se compose comme suit : Une entrée ouvrant sur le séjour d'environ 16m², un coin cuisine aménagée, une chambre et une salle d'eau avec son wc. Les ouvertures en PVC doubles vitrages assurent une isolation optimale et une tranquillité absolue. l'appartement est entièrement conforme aux normes PMR, garantissant une accessibilité sans faille. Profitez de ses plus avec sa terrasse privative avec une vue dégagée ainsi qu'un emplacement de parking extérieur. Commodités à proximité : bus, écoles, restaurants et commerces, accessibles en quelques minutes. Ne manquez pas cette opportunité. Contactez nous dès maintenant pour organiser une visite !
Honoraires à la charge du vendeur. Dans une copropriété de 100 lots. Aucune procédure n'est en cours. Classe énergie C, Classe climat C Montant moyen estimé des dépenses annuelles d'énergie pour un usage standard, établi à partir des prix de l'énergie de l'année 2021 : entre 250.00 et 390.00 . Les informations sur les risques auxquels ce bien est exposé sont disponibles sur le site Géorisques : georisques.gouv.fr.
43 m²
3 023 €
2
1
1
1
250.00 € / mois
2014
Ouest
Nord
Oui
1
1
Oui (100 lots)
Consommations énergétiques
Logement économe
108
Logement énergivore (kWhEP/m2/an)
Émissions de gaz à effet de serre
Faible émission de GES
19
Forte émission de GES(kgeqCO2/m2/an)
Contact BIAS IMMOBILIER
Contacter gratuitement à l'aide du formulaire ci-dessous.