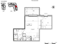
Découvrez ce charmant appartement T2 neuf offrant 45,19 m² intelligemment agencés, idéal pour une résidence principale, un premier achat ou un investissement locatif. Situé aux portes d'Angers, dans un environnement calme et agréable, ce bien bénéficie de prestations de qualité : matériaux soignés, finitions modernes, belle luminosité et confort optimal. Vous apprécierez : Un séjour lumineux avec espace cuisine, Une chambre confortable, Une salle d'eau contemporaine, Un balcon donnant sur un cadre de vie verdoyant et paisible, La proximité immédiate des commodités, transports et axes rapides vers Angers. L'appartement est situé dans une résidence neuve, conforme aux dernières normes énergétiques RE2020, garantissant économies et sérénité au quotidien. Prix : 169 900 Une opportunité rare à saisir rapidement ! Agent commercial RSAC ANGERS 885 348 490 - Honoraires à la charge du vendeur - Les informations sur les risques auxquels ce bien est exposé sont disponibles sur le site Géorisques : https://www.georisques.gouv.fr/. SAS REVO IMMO - MICHALOT Arnaud EI - O674 304 819 - Plus d'informations sur www.revo.immo (réf. 4901051243).
45.19 m²
3 760 €
2
1
1
3
2027
Électrique
Aménagée
Oui
1
Contact SAS REVO IMMO
Contacter gratuitement à l'aide du formulaire ci-dessous.