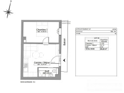
En exclusitivité, sur la commune de Seythenex, au coeur du village, venez découvrir sans tarder cet appartement T2 de 30 m² dans un petit ensemble de 4 lots d'habitation.
Ce bien situé au premier étage d'un copropriété de deux étages, propose un espace cuisine séjour de plus de 15 M², une chambre de 11 m² et une salle d'eau avec toilette intégré,
Exposition EST.
Chauffage et production d'eau chaude sanitaire individuels ( Convecteurs et ballon eau chaude). En extérieur une place de parking avec possibilité d'acquérir en sus une place de parking supplémentaire et/ou un garage de 25m², En rez de chaussée, une cave de 4M².
Rénovation très récente, qualité des matériaux, toiture neuve, aucun frais de copropriété à venir.
Pour toute information et visite, merci de contacter Thierry UNAL, agent comemrcial www.e-mobilier.fr au 06 12 77 38 01 ou par email: tunal@e-mobilier.fr
Honoraires à la charge du vendeur. Dans une copropriété de 18 lots. Aucune procédure n'est en cours. Classe énergie B, Classe climat B Montant estimé des dépenses annuelles d'énergie pour un usage standard : entre 350.00 et 450.00 sur les années 2021, 2022 et 2023 (abonnements compris). Les informations sur les risques auxquels ce bien est exposé sont disponibles sur le site Géorisques : georisques.gouv.fr.