Honoraires à la charge de l'acquéreur (Prix hors honoraires : 100000 euros).
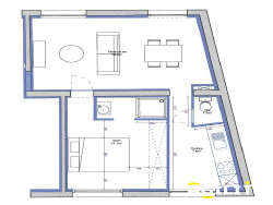
A proximité des commerces et des transports, au centre ville d'Orchies, appartement à rénover dans une petite copropriété de 5 lots. Il pourra être agencé pour proposer une pièce à vivre de 19m², d'une cuisine, d'une chambre avec coin salle d'eau et d'un WC séparé. Place de stationnement en option.
L'appartement sera livré : toitures, façades et parties communes rénovées.
Idéal déficit foncier/investisseur.
Le bien peut être acquis avec un programme de travaux pour une livraison clé en mains. Prix FAI 107 000 - prix hors d'agence 100 000
Honoraires inclus de 7% TTC à la charge de l'acquéreur. Prix hors honoraires 100 000 . Dans une copropriété de 11 lots. Aucune procédure n'est en cours. Non soumis au DPE. Les informations sur les risques auxquels ce bien est exposé sont disponibles sur le site Géorisques : georisques.gouv.fr.
Votre conseiller Agility Immobilier : Agent immobilier - Gaelle DUHET Carte T CPI 5904 2021 000 000 001 RCP Groupama
41.6 m²
2 572 €
19 m²
2
1
1
1 (séparé)
1 sur 2
7 %
1960
1
Oui (11 lots)
Contact Agility Immobilier
Contacter gratuitement à l'aide du formulaire ci-dessous.