T2 de 45 m² avec jardin privatif et deux places de parkings Résidence récente
Au sein d'une résidence récente de 2013, parfaitement entretenue et nichée dans un environnement verdoyant, découvrez ce bel appartement T2 situé en rez-de-chaussée, à proximité immédiate de toutes les commodités.
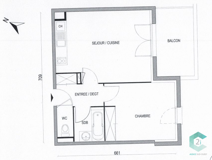
L'entrée s'ouvre sur un hall fonctionnel avec placard, menant à une agréable pièce de vie lumineuse. La cuisine aménagée s'intègre harmonieusement à l'espace et offre un accès direct au jardin privatif, idéal pour profiter pleinement de l'extérieur en toute tranquillité. La partie nuit se compose d'une chambre confortable avec rangement ainsi que d'une salle d'eau avec WC, moderne et bien agencée.
Ce bien est complété par deux places de parking, un cellier, et bénéficie d'un chauffage ainsi que d'une production d'eau chaude individuels au gaz, gage de confort et de maîtrise des charges.
Commerces, écoles,collège,transports et services du centre-ville sont accessibles à pied. Une opportunité idéale aussi bien pour une résidence principale que pour un investissement locatif de qualité.
Contactez-moi pour plus d'informations et organiser une visite.
Honoraires à la charge du vendeur. Dans une copropriété de 156 lots. Aucune procédure n'est en cours. Classe énergie C, Classe climat C Montant estimé des dépenses annuelles d'énergie pour un usage standard : entre 620.00 et 900.00 sur les années 2021, 2022 et 2023 (abonnements compris). Les informations sur les risques auxquels ce bien est exposé sont disponibles sur le site Géorisques : georisques.gouv.fr.