Découvrez votre Nouveau Nid Douillet aux portes d' Avignon
Imaginez-vous vivre dans un appartement neuf, baigné de lumière naturelle et offrant un cadre de vie exceptionnel. Situé au coeur d'Avignon, cet appartement T2 de 40,60 m² est une véritable pépite pour ceux qui recherchent un havre de paix en pleine ville. Construit en 2024, ce bien d'exception est doté d'un ascenseur pour un accès facile et confortable.
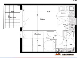
L'appartement se compose d'un séjour spacieux de 22 m², idéal pour recevoir vos proches ou simplement vous détendre après une journée bien remplie. La cuisine, un coin cuisine non équipé, vous permettra de laisser libre cours à votre créativité culinaire. La chambre, lumineuse et confortable, est un véritable cocon où vous pourrez vous ressourcer. La salle de bains et les WC séparés offrent tout le confort nécessaire pour une vie quotidienne agréable.
Ce qui distingue véritablement cet appartement, c'est son accès direct à une terrasse de 6 m² et un jardin privatif de 45 m². Imaginez-vous profiter de moments de détente en plein air, entouré de verdure, tout en étant à quelques pas du centre-ville. L'exposition ouest garantit des soirées ensoleillées et des moments de convivialité inoubliables.
En termes de commodités, tout est à portée de main. À seulement 5 minutes à pied, vous trouverez plusieurs lignes de bus et un tramway, facilitant vos déplacements quotidiens. Pour les familles, plusieurs crèches, écoles maternelles, élémentaires et collèges sont accessibles en quelques minutes en voiture ou à pied. Les amateurs de gastronomie seront ravis de découvrir les restaurants à proximité, tandis que les parcs et jardins offrent des espaces verts pour des promenades relaxantes. La présence de nombreux médecins généralistes à proximité assure également un cadre de vie sécurisant.
Ne manquez pas cette opportunité unique de vivre dans un appartement neuf, alliant confort, modernité et proximité avec les commodités essentielles. Contactez-nous dès aujourd'hui pour organiser une visite et découvrir votre futur chez-vous.
Honoraires à la charge du vendeur. Dans une copropriété de 40 lots. Aucune procédure n'est en cours. Non soumis au DPE. Les informations sur les risques auxquels ce bien est exposé sont disponibles sur le site Géorisques : georisques.gouv.fr.
Votre conseiller GUILLEM IMMOBILIER : Présidente - Solange GUILLEMIN Carte T 6601 2023 000 000 001 RCP ALLIANZ IARD