Lucas MADUENO a le plaisir de vous présenter en exclusivité cet appartement T2 situé à Luynes, commune d'Aix-en-Provence.
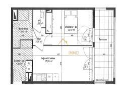
Idéalement placé au 1er étage sur 2 d'une résidence livrée en 2019 de taille modeste, ce bien de 44,85 m2 s'accompagne d'une belle terrasse de 11,45 m2 donnant vue sur la nature, sans le moindre vis-à-vis.
Vendu entièrement meublé, l'appartement bénéficie d'un aménagement optimisé offrant de nombreux rangements. Il se compose d'une entrée avec placard, d'un séjour avec cuisine aménagée et équipée, d'une chambre avec placard, d'une salle d'eau moderne avec douche italienne et enfin d'un WC séparé.
Les prestations sont au rendez-vous : chauffage électrique avec climatisation réversible, volets roulants électriques, fibre optique, et accessibilité PMR. L'appartement est également vendu avec une place de parking en sous-sol.
Montant des charges trimestrielles : 320EUR Taxe foncière : 787EUR
DPE : Consommation A (62) / Gaz Effet de Serre A (1)
Visite virtuelle & vidéo disponibles.
Pour toute visite, contactez Lucas MADUENO au : 06 79 64 26 70 ou lucas.madueno@provence-immo.fr (EI) - RSAC 827 978 446 - MENDEZ CONSEILS
Les informations sur les risques auxquels ce bien est exposé sont disponibles sur le site Géorisques : georisques.gouv Cette annonce vous est proposée par Madueno EI Lucas - EI - NoRSAC: 827 978 446, Enregistré au Greffe du tribunal de commerce de Aix en Provence
44.85 m²
5 329 €
2
1
1 sur 2
320 € / mois
2018
1
1
Oui
Oui
Consommations énergétiques
Logement économe
62
Logement énergivore (kWhEP/m2/an)
Émissions de gaz à effet de serre
Faible émission de GES
1
Forte émission de GES(kgeqCO2/m2/an)
Contact MADUENO EI Lucas
Contacter gratuitement à l'aide du formulaire ci-dessous.