Appartement T2 avec terrasse et stationnement La Roche-sur
La-Roche-sur-Foron 74800
0
Découvrez ce charmant appartement T2 situé au rez-de-chaussée d'une résidence récente et élégante, au coeur de La Roche-sur-Foron, une commune prisée pour son authenticité, ses paysages alpins et sa qualité de vie incomparable. Cet emplacement recherché permet de profiter pleinement de l'ambiance chaleureuse d'un bourg dynamique, tout en restant proche des grands axes reliant le bassin genevois, le plateau du Faucigny et le Genevois français.
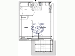
Dès l'entrée, vous serez séduit par l'agréable sensation d'espace et la fonctionnalité de la pièce de vie. L'appartement développe 40,65 m2, parfaitement optimisés, et offre un agencement harmonieux pensé pour conjuguer confort et bien-être au quotidien.
La pièce principale, baignée de lumière grâce à une large ouverture donnant sur l'extérieur, propose un séjour agréable accompagné d'un espace cuisine permettant d'aménager facilement un coin repas ainsi qu'une zone salon conviviale. L'accès direct à la terrasse crée une véritable continuité entre l'intérieur et l'extérieur, idéal pour profiter des beaux jours, recevoir des proches ou simplement savourer des moments de calme.
La chambre, d'un beau volume, permet l'installation d'un couchage confortable ainsi que de rangements sans compromettre la circulation. La salle d'eau avec WC est fonctionnelle et contemporaine, offrant des prestations adaptées aux besoins actuels : confort, praticité et sobriété des matériaux.
L'atout majeur de ce bien est sans conteste sa terrasse privative, un espace extérieur rare et très apprécié, qui permet de profiter d'une vraie respiration en plein coeur de ville. La surface extérieure offre suffisamment d'espace pour installer une table, quelques plantes ou même un petit salon d'extérieur, rendant le lieu encore plus agréable à vivre.
L'appartement s'accompagne également d'un stationnement privatif, un confort précieux dans ce secteur où la demande est forte. L'ensemble de la résidence bénéficie d'un cadre soigné, d'une architecture contemporaine et d'un environnement calme, avec un jardin intérieur paisible accessible aux résidents, créant une atmosphère douce et agréable au quotidien.
Idéal pour un premier achat, un pied-à-terre ou un investissement locatif, ce T2 réunit de nombreux critères recherchés : emplacement de choix, vie de plain-pied, extérieur généreux, prestations modernes et environnement agréable. Sa situation à deux pas du centre historique médiéval de La Roche-sur-Foron permet de profiter des commerces, restaurants, transports et services de proximité, tout en restant proche de la nature et des activités de plein air.
Cet appartement représente une belle opportunité pour celles et ceux qui souhaitent concilier confort de vie, praticité en centre-ville et sérénité dans un cadre privilégié.
Disponibilité : 2027. Pour tout renseignement complémentaire ou pour être accompagné dans votre projet immobilier, contactez Armel de Gramont Planifique Immobilier. Planifique Immobilier Bien plus qu'une agence. Les informations sur les risques auxquels ce bien est exposé sont disponibles sur le site Géorisques : www.georisques.gouv.fr
40.65 m²
5 830 €
24 m²
2
1
1
1
Sud
Ouest
Oui
1
Oui
1
Oui
Oui (129 lots)
Contact VASINA Thomas
Contacter gratuitement à l'aide du formulaire ci-dessous.