Appartement T2 de 40m2 - vendu libre sur Tournefeuille
Tournefeuille 31170
0
Honoraires à la charge du vendeur.
** TOURNEFEUILLE 31170** T2 de 40m2
À Tournefeuille, vendu libre d'occupation, situé dans une résidence récente, sécurisée et proche des commodités, transports en commun et base de loisirs de La Ramée, nous vous présentons un appartement T2 en rez-de-chaussée.
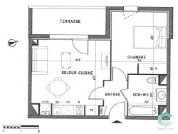
Le bien est agencé comme suit : une entrée desservant les différentes pièces de vie telles que le séjour avec coin cuisine et placard de près de 20m2 menant à une agréable terrasse, une chambre avec placard disposant d'une surface de plus de 12m2, ainsi qu'une salle de bains avec WC. À ce lot s'ajoute 1 place de parking aérienne.
Le bien est vendu libre d'occupation. Un congé pour vente a été délivré et le locataire quittera les lieux au maximum en février 2026.
Les éléments financiers : - Charges de copropriété : environs 70 /mois eau privative comprise - Taxe foncière : 1 083 /an dont 121 de TOM Honoraires à la charge vendeur.
Idéal pour un projet de résidence principale comme d'investissement locatif !
Pour tout renseignement complémentaire, contactez-nous !
Honoraires à la charge du vendeur. Dans une copropriété de 99 lots. Quote-part moyenne du budget prévisionnel 845 /an. Aucune procédure n'est en cours. Classe énergie C, Classe climat C Montant estimé des dépenses annuelles d'énergie pour un usage standard : entre 400.00 et 580.00 sur les années 2021, 2022 et 2023 (abonnements compris). Les informations sur les risques auxquels ce bien est exposé sont disponibles sur le site Géorisques : georisques.gouv.fr.
40.19 m²
2 983 €
20 m²
2
1
1
1
70.00 € / mois
2016
Ouest
Nord
1
1
Oui (99 lots)
Consommations énergétiques
Logement économe
90
Logement énergivore (kWhEP/m2/an)
Émissions de gaz à effet de serre
Faible émission de GES
16
Forte émission de GES(kgeqCO2/m2/an)
Contact C2i SUD OUEST
Contacter gratuitement à l'aide du formulaire ci-dessous.