? Le Cabinet ARBOR IMMOBILIER vous présente la nouvelle pousse « Magnolia », située à Mondeville, aux portes de Caen.
Pourquoi « Magnolia » ? Chez Arbor Immobilier, chaque projet a son histoire que l'on écrit ensemble, donc pas question d'avoir une référence impersonnelle pour vos biens.
? Ce qu'on adore :?De grandes terrasses avec vue sur l'Orne, balcons ou jardins, un chauffage par pompe à chaleur économe et respectueux de l'environnement avec des performances énergétiques exemplaires (étiquette énergétique A et GES A). Le tout à proximité immédiate des pistes cyclables et du bois du Biez, avec un accès rapide au centre-ville de Caen et aux commerces de Mondeville.
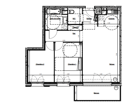
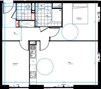
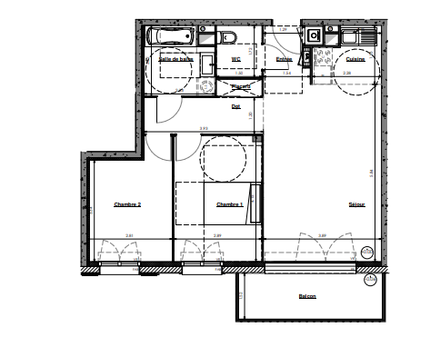
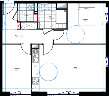
Caractéristiques principales :? Appartements disponibles du T2 au T5 ;? Grandes terrasses, balcons ou jardins privatifs ;? Stationnement privatif garanti pour chaque logement.
Extérieurs et aménagements :? Vue sur l'Orne depuis certaines terrasses ;? Espaces verts et environnement paisible ;? Proximité immédiate des pistes cyclables et du bois du Biez.
Caractéristiques techniques :? Résidence conforme à la réglementation environnementale RE2020 ;? Chauffage par pompe à chaleur ;? 107 logements + locaux d'activités + 145 places de stationnement.
Performances énergétiques :? Les dépenses énergétiques estimées ne sont pas encore connues : le DPE sera réalisé à la livraison de la résidence. ;? Les informations sur les risques auxquels ce bien est exposé sont disponibles sur le site Géorisques : www.georisques.gouv.fr.
? Les avantages à retenir :? Prêt à Taux Zéro (PTZ) possible ;? LMNP possible pour un investissement locatif ;? Frais de notaire réduits ;? Exonération partielle de taxe foncière ;? Idéal en résidence principale comme en investissement patrimonial ; Calculer la rentabilité de votre projet avec le cabinet Arbor Patrimoine en passant par Arbor immobilier !
HONORAIRES : Charge vendeur VENDU LIBRE ET NON MEUBLÉ
Cette annonce immobilière vise plusieurs lots situés dans une future copropriété de 107 logements et ne faisant l'objet d'aucune procédure en cours citée à l'article L. 721-1 du code de la construction et de l'habitation.
« Magnolia » vous intéresse ? Un doute ? Un critère essentiel manque à l'appel ? Ne repartez pas de cette annonce avec des hésitations : contactez-nous, on en discute, et on vous aide à trouver le bien fait pour vous et qui sait, c'est celui-ci !
Retrouvez-nous sur nos réseaux sociaux, vous y découvrirez nos biens et nos conseils.? ARBOR IMMOBILIER, un cabinet où l'immobilier s'intègre dans une vision patrimoniale globale, avec un accompagnement sur mesure à chaque étape de votre projet. Mandat présenté par le cabinet ARBOR IMMOBILIER (SIREN 933 179 673) dont le numéro de Carte professionnelle est : CPI14012024000000025, délivrée par la CCI de Caen et valable jusqu'au : 31/10/2027. RCS de Caen. Les photos ne sont pas contractuelles.
Cette annonce est rédigée par et sous la responsabilité du cabinet Arbor Immobilier, cabinet indépendant & humain.
Honoraires à la charge du vendeur. Dans une copropriété de 107 lots. Aucune procédure n'est en cours. Non soumis au DPE. Les informations sur les risques auxquels ce bien est exposé sont disponibles sur le site Géorisques : georisques.gouv.fr.